0888 11 22 00
Най-добрият сайт на агенция
за имоти според потребителите

к-с Планова

Апартаменти ново строителство - Варна

к-с Планова

к-с Планова, Варна, Кайсиева градина, Снимка 1
к-с Планова, Варна, Кайсиева градина, Снимка 2
к-с Планова, Варна, Кайсиева градина, Снимка 3
к-с Планова, Варна, Кайсиева градина, Снимка 4
Разрешение за строеж
Варна, Кайсиева градина

Свободни 0

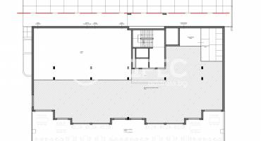
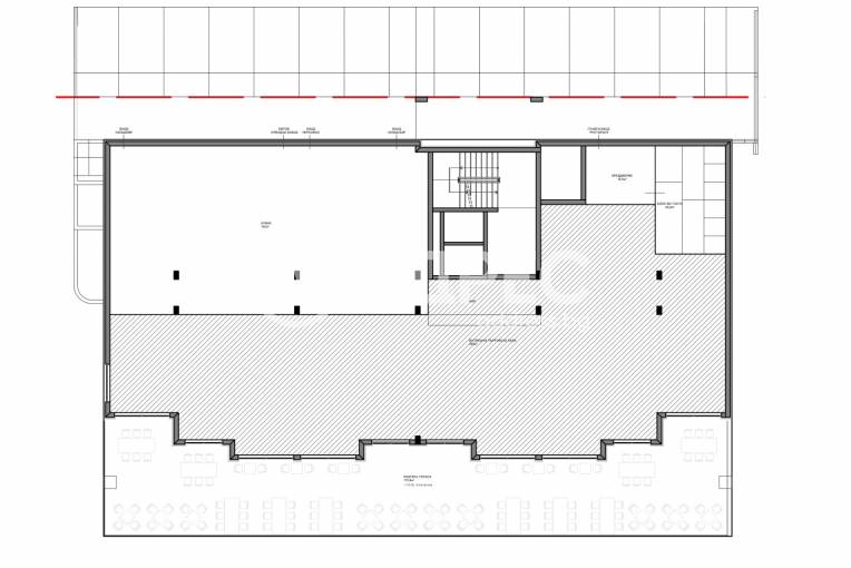
Описание

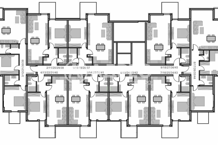
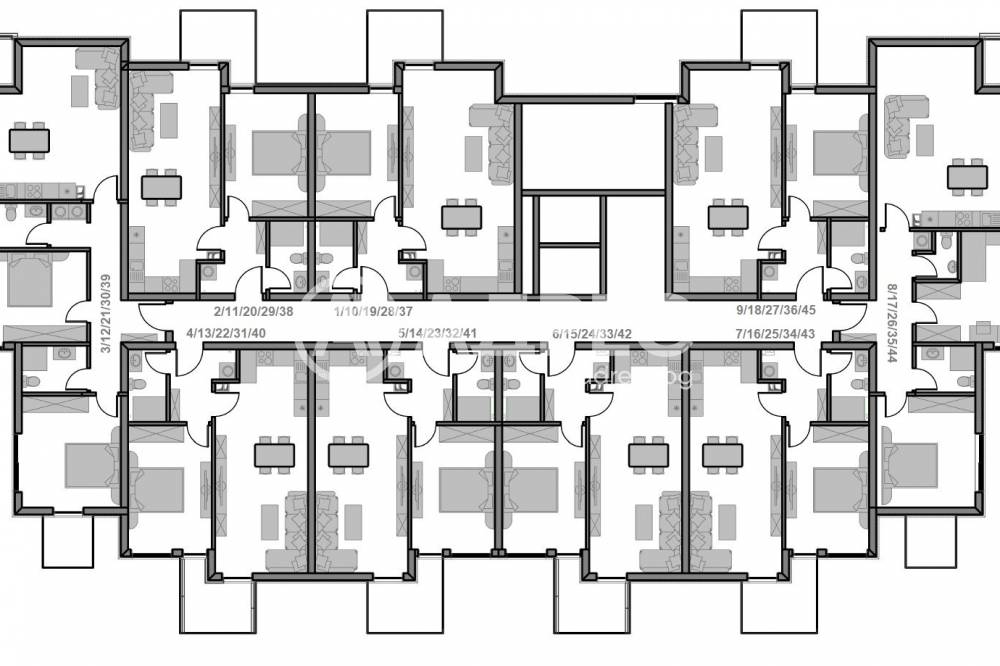
Нова сграда на 6 етажа в кв. "Владислав Варненчик", м-т "Планова". Предвидено Разрешение за строеж в края на 2025 г.

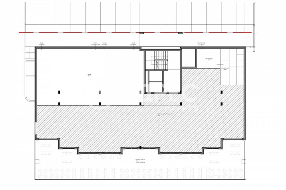
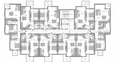
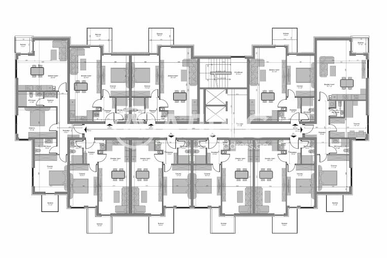
Сградата ще бъде със стилна и модерна визия, без отстъпи и скосове. На първи етаж е проектиран голям ресторант над 506 кв.м + тераса 173 кв.м, със собствени външни паркоместа за посетители. Той също се предлага за продажба. Жилищата започват от втори етаж и са идентични по вертикалата нагоре. Сградата разполага с две нива подземен паринг.

Сградата се намира в ж.к. "Кайсиева Градина", в карето между бул."Цар Освободител" и бул. "Трети март". Непосредствено близо е до автобусна спирка, на 5 минути пеш има училище и детска градина, а за 15 мин се стига до магазин "МЕТРО".

Основните преимущества са красивата гледка към Варненското езеро, утвърденото качество на строителни и довършителни работи.

имоти в сградата

Други оферти в тази локация

Изпратете запитване

Любомира Карова

Консултант

Контакти

Форма за запитване

Подобни имоти