0888 11 22 00
Най-добрият сайт на агенция
за имоти според потребителите

Комплекс къщи

Апартаменти ново строителство - Полски извор

Комплекс къщи

Комплекс къщи, Полски извор, Снимка 1
Комплекс къщи, Полски извор, Снимка 2
Комплекс къщи, Полски извор, Снимка 3
В строеж
Полски извор

Свободни 3

Къща/Вила: 3

Описание

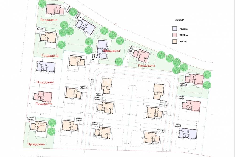
НОВИ ЕДНОФАМИЛНИ КЪЩИ СЪС СОБСТВЕН ДВОР В СЕЛО ПОЛСКИ ИЗВОР Спокойствие, комфорт и простор – вашият нов дом сред природата Представяме ви уникален жилищен проект в живописното село Полски Извор, само на 18 км от Бургас. Тук ще бъдат изградени 20 самостоятелни къщи, проектирани за съвременния начин на живот – с просторни помещения, собствени дворове и без такса поддръжка. ✅ Разсрочено плащане ✅ Висококачествено строителство с възможност за завършване "до ключ"! ✅ Големи парцели – от 500 до 600 кв.м! ТИПОВЕ КЪЩИ Къща "Амели" – Компактна и уютна Жилищна площ: 141.6 кв.м Площ на парцела: 500-550 кв.м Разпределение: Първи етаж: Дневна с кухня и трапезария, спалня, баня с тоалетна, склад, веранда Втори етаж: Две спални (едната с гардеробна и баня), втора баня с тоалетна Цена: 119,980 € Къща "Брита" – Простор и функционалност Жилищна площ: 159.7 кв.м Площ на парцела: 550-600 кв.м Разпределение: Първи етаж: Дневна с кухня и трапезария, спалня, баня, отделна тоалетна, перално помещение, склад, веранда Втори етаж: Две спални (едната с гардеробна и баня), втора баня, балкон Цена: 135,745 € Къща "Стела" – За тези, които искат повече пространство Жилищна площ: 190.8 кв.м Площ на парцела: 550-600 кв.м Разпределение: Първи етаж: Дневна с кухня и трапезария, спалня, баня, отделна тоалетна, перално помещение, склад, веранда Втори етаж: Три спални (едната с гардеробна и баня), втора баня, два балкона Цена: 162,180 € ЗАВЪРШВАНЕ ПО ЖЕЛАНИЕ НА КЛИЕНТА Къщите се предлагат на етап "тапа" с възможност за завършване "до ключ", което включва: ✅ Шпакловани и боядисани стени и тавани ✅ Подови настилки по избор – ламинат, гранитогрес, плочки ✅ Инсталирани санитарни уреди ✅ Вътрешни врати и електрически компоненти Предлагаме и обзавеждане с различни мебелни пакети по ваш избор! Срок за завършване: До 1 година след подписване на резервационен договор ЗАЩО ДА ИЗБЕРЕТЕ СЕЛО ПОЛСКИ ИЗВОР? Тихо и спокойно място, заобиколено от красива природа Само на 18 км от Бургас – идеален баланс между градската динамика и уединението Перфектно за постоянно живеене или ваканционен дом Вашият нов дом ви очаква! 

имоти в сградата

Други оферти в тази локация

Изпратете запитване

Злати Янакиев

Консултант

Контакти

Форма за запитване