0888 11 22 00
Най-добрият сайт на агенция
за имоти според потребителите

Олимпия Вилидж Марково

Апартаменти ново строителство - Марково

Олимпия Вилидж Марково

Олимпия Вилидж Марково, Марково, Снимка 1
Олимпия Вилидж Марково, Марково, Снимка 2
Олимпия Вилидж Марково, Марково, Снимка 3
Олимпия Вилидж Марково, Марково, Снимка 4
Олимпия Вилидж Марково, Марково, Снимка 5
Олимпия Вилидж Марково, Марково, Снимка 6
Олимпия Вилидж Марково, Марково, Снимка 7
Разрешение за строеж
Марково

Свободни 4

Къща/Вила: 4

Описание

ПРЕДПРЕМИЕРА, ИЗБЕРЕТЕ ПЪРВИ И СЕ ВЪЗПОЛЗВАЙТЕ ОТ СПЕЦИАЛНИ УСЛОВИЯ ЗА НАШИТЕ КЛИЕНТИ- БЕЗ КОМИСИОН И БЕЗ ТАКСА ОБСЛУЖВАНЕ! Проект, на доказан инвеститор и строител, с основен фокус качествено изпълнение и доволни клиенти!

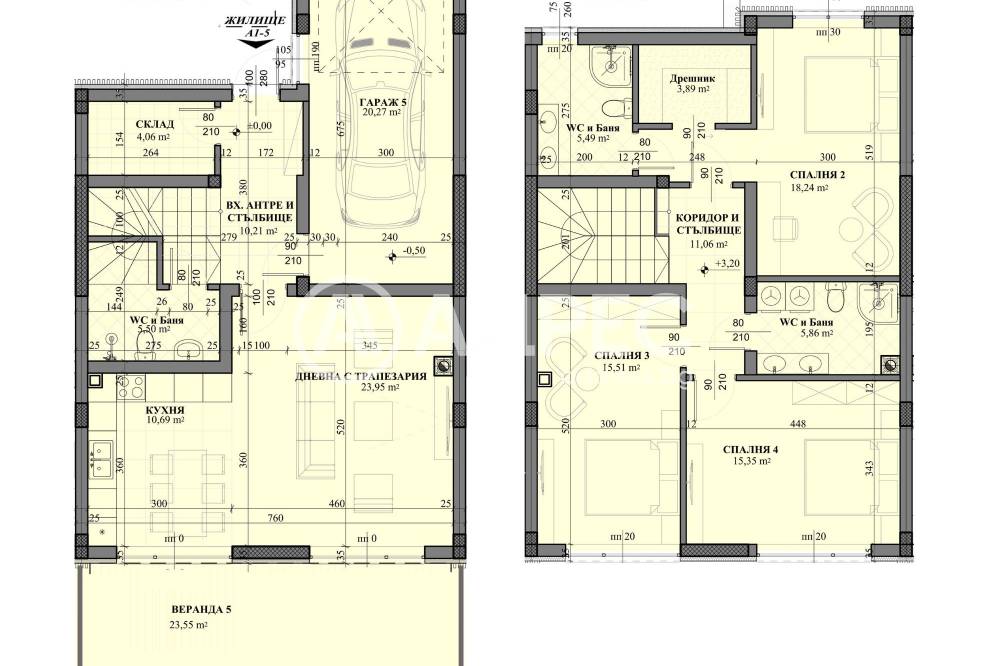
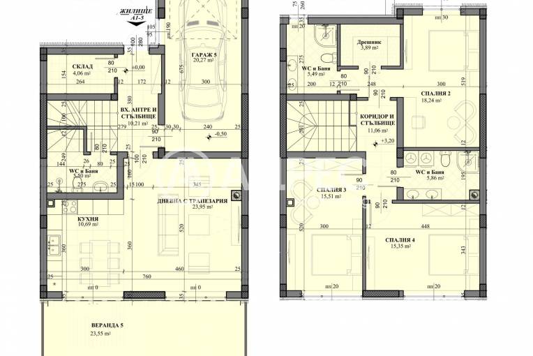
„Олимпия Вилидж Марково“, разположен в с. Марково- създаден за повишаване качеството на живот.  На покривите ще има инсталирани слънчеви батерии, а в къщата – батерия, от която може да се черпи електричество през нощта, като произведената електроенергия ще се използва изцяло от живущите в къщата и ще покрива до 75% от цялата сметка за електричество. Това е най- голямата добавена стойност, в едно с безкомпромисно качество на строителство и влагане на най- добрите материали. Уникално местоположение, изградена инфраструктура, с директен достъп до главния път, водещ до Оловръстното на Пловдив, за не повече от 5 минути! Комплексът се състои от 24 броя редови къщи, разделени в 4 сгради, всяка със собствен двор, веранда, гараж и минимум две паркоместа, включени в цената.

Уникално местоположение, изградена инфраструктура, с директен достъп до главния път, водещ до Оловръстното на Пловдив, за не повече от 5 минути!

Сред основните предимства на комплекса са: - отличното местоположение, с изградена вече инфраструктура и директен достъп до Околовръстен път; - Слънчеви панели и собствена батерия към всяка къща; - доказан във времето строител и инвеститор, с безкомпромисно качество на изпъление; - разсрочено плащане, с възможност за първа вноска 20% или 30% и сотанлите след Акт 16! - специални условия за наши клиентит 

имоти в сградата

Други оферти в тази локация

Изпратете запитване

Георги Божков

Консултант

Контакти

Форма за запитване

Подобни имоти