0888 11 22 00
Най-добрият сайт на агенция
за имоти според потребителите

Тристаен апартамент, продажба, Елин Пелин

Код на имота: 686719

Тристаен апартамент, продажба, Елин Пелин

Тристаен апартамент, Елин Пелин, 686719, Снимка 1
Тристаен апартамент, Елин Пелин, 686719, Снимка 2
Само от Адрес
Елин Пелин
110 кв.м.
138 500
Тристаен апартамент
Купи само за /мес.
г.
48 преглеждания
1259 €/кв.м.

Описание

Площ: 110 кв.м.

Тип Имот: Тристаен апартамент

Етаж: 4

Ниво на обзавеждане: Шпакловка и замазка

Отопление: Друго

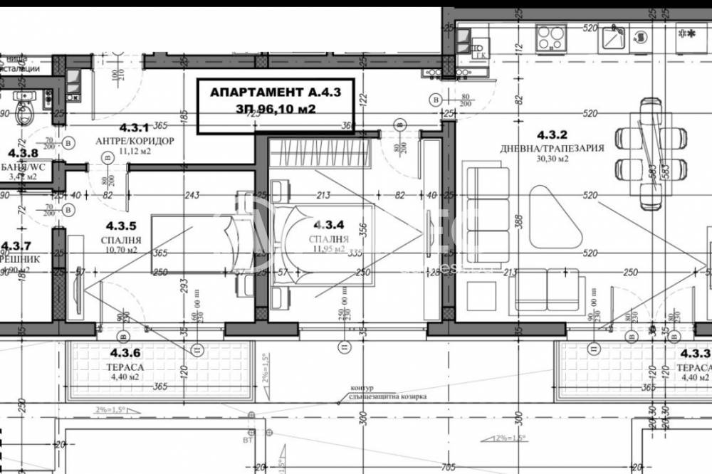
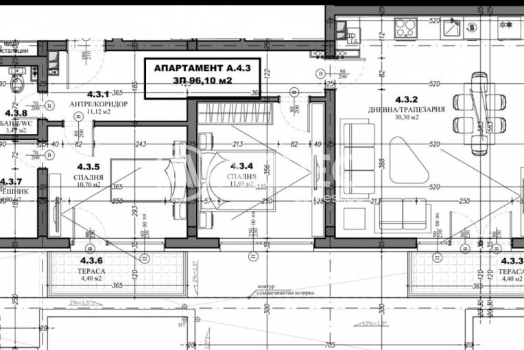
Просторен тристаен апартамент със застроена площ  96.10 кв.м. и 110 кв.м.с общите части, състоящ се от коридор, дневна с кухненски бокс, две спални, дрешник, баня с тоалетна и две тераси.  

Сградата е пред АКТ 14

Село Гара Елин Пелин е  тих и спокоен район с бърз достъп до София с много добра инфраструктура. На15 мин. от София, на 5 мин. от магистрала Тракия, на 15 мин. от магистрала Хемус. Атрактивно място за живот и инвестиция.

Тихо и спокойно място за живеене с жп. гара и градски транспорт.

Обади се СЕГА и цитирай този код 686719.

Купувачите вече разглеждат този имот.

Локацията е приблизителна

Други имоти в тази локация

Транспорт

Проверете маршрут

Изпратете запитване

Павел Ангелов

Павел Ангелов

Консултант

Контакти

Форма за запитване

Подобни имоти

Пиши ни ново
Заяви оглед