0888 11 22 00
Най-добрият сайт на агенция
за имоти според потребителите

Парцел/Терен, продажба, Китка

Код на имота: 657328

Парцел/Терен, продажба, Китка

Парцел/Терен, Китка, 657328, Снимка 1
Китка
690 кв.м.
28 000
Парцел/Терен
Купи само за /мес.
г.
352 преглеждания
41 €/кв.м.

Описание

Площ: 690 кв.м.

Тип Имот: Парцел/Терен

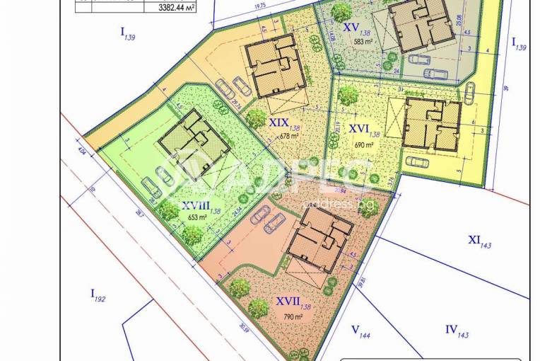
ПАРЦЕЛИ в центъра на с.Китка,  на 17,6 км, 15 минути южно от Варна. 5 собствени, самостоятелни, равни съседни парцела с южно изложение в центъра (до автобусната спирка) на село Китка. С влязъл в сила ПУП и ПРЗ, с издадени  и съгласувани визи за проектиране на жилищни сгради и становища за присъединяване към Електропреносна и ВиК мрежи.  С готови примерни проекти за строеж на къщи в тоскански винтидж стил с разгъната застроена площ 225 кв.м, с 3,4, или 5 спални, с прогнозен бюджет за изграждането им около 150 хил. .  С готови изкопи, излят подложен бетон. Тихо, спокойно и сигурно място, в близост до курорта Камчия, природни резервати и красиви плажове. УПИ XV       - 583 кв.м. - 30000е УПИ XVI      - 690 кв.м. - 28000е  УПИ XVII     - 778 кв.м. - 39000е  продаден УПИ XVIII    - 653 кв.м. - 39000е  продаден УПИ XIX      - 678 кв.м. - 32000е продаден    

центъра на село Китка 

Локация, ток, вода, аслфатиран достъп

Обади се СЕГА и цитирай този код 657328.

Купувачите вече разглеждат този имот.

Локацията е приблизителна

Други имоти в тази локация

Транспорт

Проверете маршрут

Изпратете запитване

Никола  Дорелов

Никола Дорелов

Консултант

Контакти

Форма за запитване

Подобни имоти

Пиши ни ново
Заяви оглед