0888 11 22 00
Най-добрият сайт на агенция
за имоти според потребителите

Двустаен апартамент, продажба, Пловдив, кв. Кючук Париж

Код на имота: 635116

Двустаен апартамент, продажба, Пловдив

Двустаен апартамент, Пловдив, Кючук Париж, 635116, Снимка 1
Пловдив, Кючук Париж
58 кв.м.
96 800
Двустаен апартамент
Купи само за /мес.
г.
311 преглеждания
1669 €/кв.м.

Описание

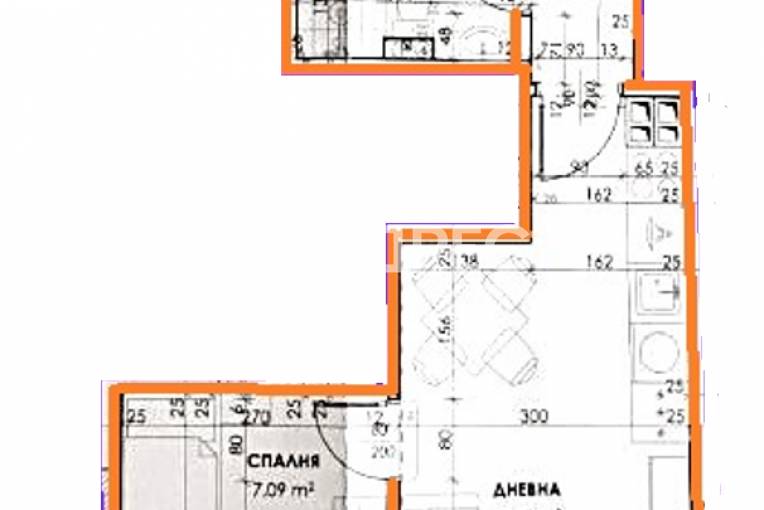
Площ: 58 кв.м.

Тип Имот: Двустаен апартамент

Етаж: 5

Ниво на обзавеждане: Шпакловка и замазка

Отопление: Друго

Двустаен апартамент с площ от 57,92 кв.м., разпределени в: една спалня, дневна с кухненски бокс, една тераса, разположен на четвърти жилищен етаж в нова жилищна сграда, прилежаща изба с площ от 4,94кв.м.

Новострояща се шест етажна жилищна сграда с гаражи на партерно ниво. Етап на завършеност Акт 14.

Намира се в квартак Кючук Париж, близо до общината.

Нова сграда, търсена локация, на тиха уица.

Обади се СЕГА и цитирай този код 635116.


Оферта от партньор на Адрес

Други апартаменти в сградата

Купувачите вече разглеждат този имот.

Локацията е приблизителна

Други имоти в тази локация

Транспорт

Проверете маршрут

Изпратете запитване

Валентина Бечева

Валентина Бечева

Консултант

Контакти

Форма за запитване

Подобни имоти

Пиши ни ново
Заяви оглед