0888 11 22 00
Най-добрият сайт на агенция
за имоти според потребителите

Едностаен апартамент, продажба, Поморие, кв. Стария град

Код на имота: 642641

Едностаен апартамент, продажба, Поморие

Едностаен апартамент, Поморие, Стария град, 642641, Снимка 1
Едностаен апартамент, Поморие, Стария град, 642641, Снимка 2
Едностаен апартамент, Поморие, Стария град, 642641, Снимка 3
Скица
Нова жилищна сграда в гр. Поморие - 10 свободни Вижте всички свободни апартаменти в сградата
Поморие, Стария град
52 кв.м.
78 195
Едностаен апартамент
Купи само за /мес.
г.
302 преглеждания
1504 €/кв.м.

Описание

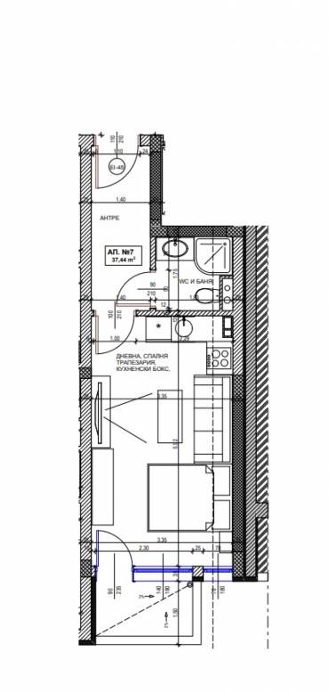
Площ: 52 кв.м.

Тип Имот: Едностаен апартамент

Етаж: 4

Ниво на обзавеждане: Шпакловка и замазка

Отопление: Друго

Новострояща се жилищна сграда в гр. Поморие. Без такса поддръжка. Едностаен апартамент с площ 52,13 кв. м., етаж 4 /3-ти жилищен/ от 6, асансьор. Състои се от входно антре, баня с тоалетна, просторна стая разпределена по следния начин: кухненски кът, дневно пространство и спална зона, тераса. Складово помещение № 5 - 4,11 кв. м. в подземното ниво. Жилището се предлага на етап завършеност ”тапа” /шпакловани стени и тавани, подовете - замазка/. Може да бъде завършено ” до ключ” /завършени подови настилки, завършена баня и тоалетна/ срещу допълнително заплащане от 13 033 евро.  За удобство на собствениците се предвиждат гаражи и паркоместа както в сградите така и в двора.

Срок за изпълнение - 24 месеца.  Начало на строителството януари 2025 г.

Непосредствена близост до лековитите води на Поморийското езеро, болница, детска градина, супермаркети и т.н.

Обади се СЕГА и цитирай този код 642641.

Други апартаменти в сградата

Купувачите вече разглеждат този имот.

Локацията е приблизителна

Други имоти в тази локация

Транспорт

Проверете маршрут

Изпратете запитване

Мария Данова

Мария Данова

Консултант

Контакти

Форма за запитване

Подобни имоти

Пиши ни ново
Заяви оглед