0888 11 22 00
Най-добрият сайт на агенция
за имоти според потребителите

Магазин, продажба, Шумен, кв. Център

Код на имота: 565146

Магазин, продажба, Шумен

Магазин, Шумен, Център, 565146, Снимка 1
Шумен, Център
180 кв.м.
215 000
Магазин
Купи само за /мес.
г.
571 преглеждания
1194 €/кв.м.

Описание

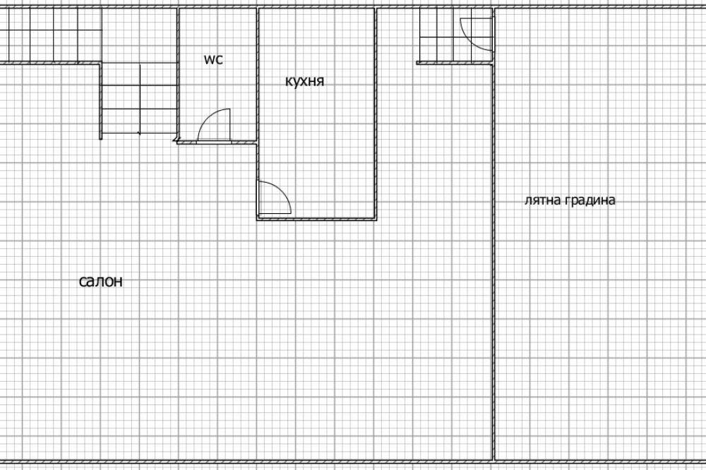
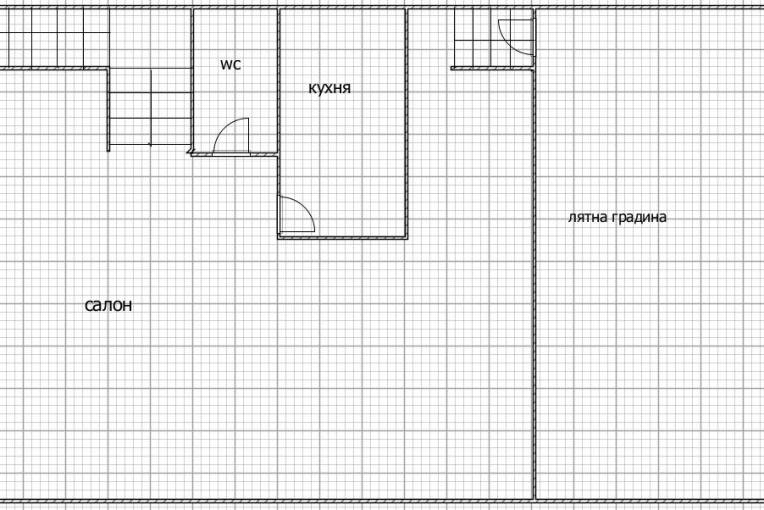
Площ: 180 кв.м.

Тип Имот: Магазин

Етаж: Сутерен

Ниво на обзавеждане: Необзаведен

Отопление: Газ

АДРЕС Недвижими имоти предлага Търговско помещение със статут на заведение, в центъра на гр. Шумен. Заведението е с площ от 180 кв.м, разпределена на салон, кухня и санитарно помещение. Имотът разполага с лятна градина с площ от 100 кв.м. Помещението е подходящо за ресторант, бар и др.

Тухлена офис сграда.

В центъра на гр. Шумен, в близост до административни сгради.

Наличие на лятна градина.

Обади се СЕГА и цитирай този код 565146.


Оферта от партньор на Адрес

Купувачите вече разглеждат този имот.

Локацията е приблизителна

Други имоти в тази локация

Транспорт

Проверете маршрут

Изпратете запитване

Мартина Денчева

Мартина Денчева

Консултант

Контакти

Форма за запитване

Подобни имоти

Заяви оглед