0888 11 22 00
Най-добрият сайт на агенция
за имоти според потребителите

Тристаен апартамент, продажба, София, кв. Бояна

Код на имота: 654220

Тристаен апартамент, продажба, София

Тристаен апартамент, София, Бояна, 654220, Снимка 1
Тристаен апартамент, София, Бояна, 654220, Снимка 2
Скица
София, Бояна
117 кв.м.
315 900
Тристаен апартамент
Купи само за /мес.
г.
88 преглеждания
2706 €/кв.м.

Описание

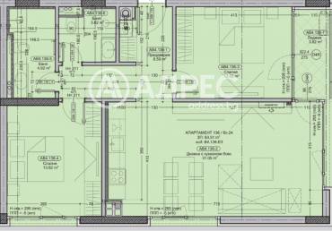
Площ: 117 кв.м.

Тип Имот: Тристаен апартамент

Етаж: 3

Ниво на обзавеждане: Шпакловка и замазка

Отопление: Газ

ТРИСТАЕН АПАРТАМЕНТ С АКТ 16! Жилищен комплекс „Фохар“ е разположен в гр. София, кв. „Бояна“, над резиденция „Бояна“ и в непосредствена близост до бул. „България“ и Околовръстен път, осигуряващи директен достъп до града. Районът е предпочитан заради чистия въздух и непосредствена близост до природен парк „Витоша“, което гарантира спокойствие и уют сред природата. Апартаментът се намира на 3-ти етаж, с изложение запад/север и има обща площ 116.63 кв.м. Състои се от антре, две бани с тоалетни, две спални, всекидневна с кухня, тераса тип лоджия, с излаз от дневната и една от спалните. Предлага се в степен на завършеност по БДС: подове с шумоизолация Copersound P-TEX; ключове и контакти Legrand Valena Life; PVC дограма с троен стъклопакет Kömmerling; отопление на газ с котел Bosch и окабеляване за климатици; входна врата Solid, модел iDoor 20-23; тераса с мразоустойчив гранитогрес.     Допълнително  Всеки апартамент е с вградени smart home ready функционалности ще ви позволяват да управлявате дистанционно сигурността на дома си, да отключвате входната врата преди да сте стигнали прага й или да управлявате устойчиво отоплението си и да пестите пари и енергия, като пускате отоплението с едно движение чрез телефона на път за вкъщи. Към имота може да се закупи подземно паркомясто на цена 27 000 евро без ДДС.

FOHAR e разположен на главна улица между Бояна и Драгалевци, със собствена едноименна спирка на градския транспорт. Tам можете да живеете в центъра на панорамна гледка — едновременно към целия град, телевизионната кула и планината, която да ви изпълва с позитивна енергия всеки ден. Същевременно локацията e лесно достъпна от центъра на София и основните офис зони по два булеварда или с две думи — умен живот във всяко измерение на това модерно по монолитна стоманобетонна конструкция; преградни стени от керамични тухли Wienerberger; 10 см топлоизолация EPS и фасада с естествен камък и клинкер; XPS топлоизолация на покрива; луксозни общи части с гранит и асансьори Kone за 8 души; озеленяване с автоматична поливна система; автоматична гаражна врата с дистанционно управление.

Обади се СЕГА и цитирай този код 654220.

Купувачите вече разглеждат този имот.

Локацията е приблизителна

Други имоти в тази локация

Транспорт

Проверете маршрут

Изпратете запитване

Петьо Петков

Петьо Петков

Консултант

Контакти

Форма за запитване

Подобни имоти

Пиши ни ново
Заяви оглед