0888 11 22 00
Най-добрият сайт на агенция
за имоти според потребителите

Тристаен апартамент, продажба, София, кв. Център

Код на имота: 664464

Тристаен апартамент, продажба, София

Тристаен апартамент, София, Център, 664464, Снимка 1
Тристаен апартамент, София, Център, 664464, Снимка 2
Тристаен апартамент, София, Център, 664464, Снимка 3
Тристаен апартамент, София, Център, 664464, Снимка 4
София, Център
95 кв.м.
206 000
Тристаен апартамент
Купи само за /мес.
г.
570 преглеждания
2168 €/кв.м.

Описание

Площ: 95 кв.м.

Тип Имот: Тристаен апартамент

Етаж: 3

Ниво на обзавеждане: Шпакловка и замазка

Отопление: ТЕЦ

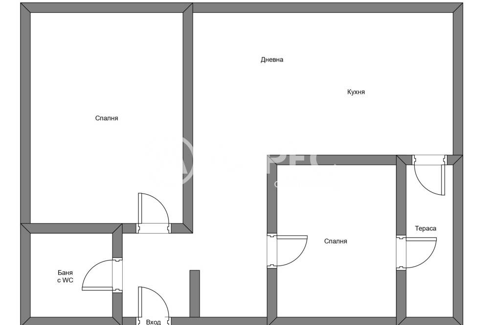
А16 !!!! Представям ви голям , просторен тристаен апартамент   в Банишора създаващ усещането ,че сте в светлините на Ню Йорк. Състои се от хол с кухненски бокс ,  две спални , баня с тоалетна , килер и балкон. Към апартамента има и гараж на цена 38000 евро.Сградата е с разрешение за ползване.

Комплексът  е създаден и проектиран, за да постигане балансирана градска среда, благоприятстваща устойчив и съвременен начин на живот. Разположен върху парцел с площ от близо 30 дка, комплексът се състои от седем сгради с височина 50 м., с разгъната застроена площ от близо 90 000 кв. м., при ниска плътност на застрояване от малко над 10 000 кв. м., благоприятстваща развитието на зелената система и пространствата за отдих и социална комуникация, допринасящи от своя страна за постигнатия висок комфорт на обитаване. Компонентите на парковата среда включват: • широки алеи за разходка и джогинг; • просторни площадни пространства за кратък отдих и развлечения; • безопасни и интересни площадки за игра за различни възрастови групи; • съвременно оборудван спортен кът с различни транировъчни уреди за стрийт фитнес; • тихи и спокойни кътове за отдих и отмора; • богата растителност, композирана в унисон с плановото решение – пейзажно и със свежи тонове, осигурявайки допълнителен шумов комфорт на вътрешните пространства.

Локацията, инфраструктурата и достъпът са ключов елемент при избор на жилище. Затвореният комплекс се намира в един от перспективните столични райони в широкия градски център, очертан от улиците „Опълченска“ и „Скопие“ и булевардите „Сливница“ и „Княгиня Мария Луиза“, в непосредствена близост до един от най-успешните вече реализирани проекти ново строителство и с перфектна комуникационна връзка с градското ядро на София. Близостта до мрежата на Метрополитена, както и преминаващите по периферията на квартала автобусни, тролейбусни и трамвайни трасета на масов градски транспорт превръщат района в отлично място за живеене, с осигурени бързи връзки с централни и тангенциални части от града.

Защо да купите апартамент  в тази сграда ? • Отлична локация в широкия център на столицата. • Пешеходно разстояние до всякакви удобства. • Лесен и удобен достъп до метро и всички видове градски транспорт. • Съвременна паркова среда, простираща се на близо 12 дка. • Богат избор от двустайни, тристайни и четиристайни апартаменти. • Перфектни функционални разпределения. • Различни възможности за адаптивност на жилищната планова схема. • Спиращи дъха гледки към Витоша и София. • Съвременни строителни материали и технологии. • Отлична сградна инфраструктурна обезпеченост. • Високо качество на жилищната среда, сред много светлина и зеленина. • Голям брой търговски обекти в рамките на комплекса. • Строг контрол на достъпа и видеонаблюдение с перфектно покритие.

Обади се СЕГА и цитирай този код 664464.

Купувачите вече разглеждат този имот.

Локацията е приблизителна

Други имоти в тази локация

Транспорт

Проверете маршрут

Изпратете запитване

Анета Арсова

Анета Арсова

Консултант

Контакти

Форма за запитване

Подобни имоти

Пиши ни ново
Заяви оглед

За квартал Център, София

Квартал Център представлява историческото и административно сърце на София. Разположен върху основите на древния римски град Сердика, той е емблематична част на столицата, в която се съчетават архитектурното наследство, градската среда и съвременната инфраструктура. Кварталът обхваща пространството между булевардите „Васил Левски“, „Мария Луиза“, „Патриарх Евтимий“, „Сливница“ и „Христо Ботев“, което го прави географски ядрото на града.

 

Центърът разполага с най-развитата транспортна мрежа в София. През него преминават три линии на метрото, обслужвани от станции „Сердика“, „НДК“, „Софийски университет“, „Опълченска“ и „Лъвов мост“. Тук функционират множество автобусни, тролейбусни и трамвайни линии, които осигуряват директен достъп до всички части на столицата. Добрата пътна организация и централното разположение правят придвижването удобно както за жители, така и за работещи в района.
Централната част на София се отличава с разнообразен жилищен фонд, от реставрирани кооперации с историческа стойност и архитектурен чар, до новопостроени сгради с високо качество на изпълнение. 

 

Квартал Център предлага пълноценна градска среда, в която се намират държавни и частни училища, детски градини, както и висши учебни заведения, сред които Софийски университет „Св. Климент Охридски“, УАСГ, Националната художествена академия и Музикалната академия.
 Медицинските услуги са достъпни чрез държавни и частни болници, поликлиники и аптеки, включително МБАЛ „Св. Екатерина“, Първа градска болница и УМБАЛ „Александровска“ в непосредствена близост.

 

Търговската инфраструктура е добре развита, в района се намират магазини от големи вериги, бутикови обекти, супермаркети, пазари и ресторанти. Центърът е и културното средище на София. Тук са разположени Националният театър „Иван Вазов“, Националната художествена галерия, катедралата „Св. Александър Невски“, както и множество театри, галерии и концертни зали.
Въпреки централното си разположение, районът разполага с разнообразие от зелени площи – Градската градина, Докторската градина, парковете „Заимов“ и „Борисова градина“.

Богатата инфраструктура, централното местоположение и културно-историческата стойност на района превръщат Центъра в един от най-предпочитаните райони в София за покупка на недвижим имот както за дългосрочно живеене, така и за инвестиции с цел отдаване под наем. 

 

Независимо дали търсите уютно студио, просторен апартамент или къща, старо или ново строителство, обзаведени или необзаведени, обявите ни включват разнообразни имоти с функционално разпределение, които отговарят на различни бюджети и предпочитания. 

Нашите брокери недвижими имоти, специализирали в процеса на избор, договаряне и  осъществяване на сделки с имоти, ще ви съпътстват през целия процес - сравнение на оферти, провеждане на огледи и преговори, запознаване и изготвяне на юридическа документация за покупка на мечтания от вас дом.
 
Тук може да се запознаете и с местоположението на офисите на АДРЕС в София.