0888 11 22 00
Най-добрият сайт на агенция
за имоти според потребителите

Многостаен апартамент, продажба, София, кв. Горубляне

Код на имота: 678258

Многостаен апартамент, продажба, София

Многостаен апартамент, София, Горубляне, 678258, Снимка 1
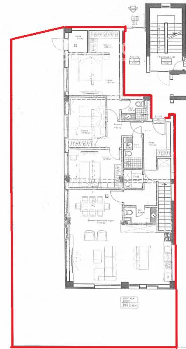
Скица
Новo
София, Горубляне
117 кв.м.
295 000
Многостаен апартамент
Купи само за /мес.
г.
9 преглеждания
2529 €/кв.м.

Описание

Площ: 117 кв.м.

Тип Имот: Многостаен апартамент

Етаж: 3

Ниво на обзавеждане: Шпакловка и замазка

Отопление: Газ

Апартамент А11 е разположен на трети етаж. Застроената жилищна площ е 101.70кв.м, а общите части са 14.93кв.м

Представяме Ви новостроящ се жилищен комплекс, състоящ се от две самостоятелни триетажни сгради, разположени в тиха вътрешна част на кв. Горубляне. Проектът съчетава съвременна архитектура, функционални жилища и удобства, създадени за комфортен градски живот. Проектът предлага богат избор от функционални апартаменти и вградени къщи, подходящи както за лично ползване, така и за инвестиция. Подземни гаражи, осигуряващи удобство към всяко жилище. Лесен и широк достъп до сградите.

Комплексът е разположен в един от най-спокойните и същевременно комуникативни райони на София: Бърз достъп до бул. „Цариградско шосе“, Околовръстен път и бъдещи инфраструктурни подобрения. В близост до метростанция „Цариградско шосе“, автобусни линии и търговски обекти. На пешеходно разстояние има училища, детски градини, магазини, заведения и зелени площи. Тих вътрешен квартал, далеч от шумните булеварди, но с удобна градска свързаност.

Подходящи както за личен дом, така и за инвестиция с висока доходност. Качествено строителство от доказан инвеститор. Гъвкави схеми на плащане. Район с високо търсене и потенциал за покачване на цените.

Обади се СЕГА и цитирай този код 678258.


Оферта от партньор на Адрес

Други апартаменти в сградата

Купувачите вече разглеждат този имот.

Локацията е приблизителна

Други имоти в тази локация

Транспорт

Проверете маршрут

Изпратете запитване

Никола Яначков

Никола Яначков

Консултант

Контакти

Форма за запитване

Подобни имоти

Пиши ни ново
Заяви оглед