0888 11 22 00
Най-добрият сайт на агенция
за имоти според потребителите

Парцел/Терен, продажба, София, кв. Карпузица

Код на имота: 685677

Парцел/Терен, продажба, София

Парцел/Терен, София, Карпузица, 685677, Снимка 1
Парцел/Терен, София, Карпузица, 685677, Снимка 2
Парцел/Терен, София, Карпузица, 685677, Снимка 3
Парцел/Терен, София, Карпузица, 685677, Снимка 4
Парцел/Терен, София, Карпузица, 685677, Снимка 5
Парцел/Терен, София, Карпузица, 685677, Снимка 6
Парцел/Терен, София, Карпузица, 685677, Снимка 7
Скица
Само от Адрес
5+ огледа
София, Карпузица
320 кв.м.
480 000
Парцел/Терен
Купи само за /мес.
г.
117 преглеждания
1500 €/кв.м.

Описание

Площ: 320 кв.м.

Тип Имот: Парцел/Терен

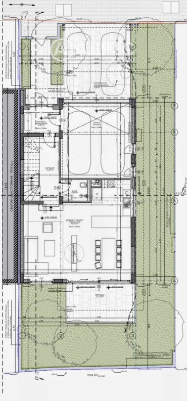
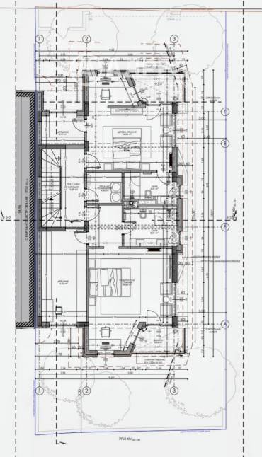
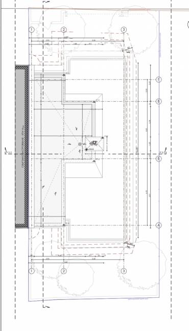
Парцел в кв. Карпузица, София, с площ 320 кв.м и отлична комуникативна локация. Имотът е равен и разполага с одобрен проект и всички изискуеми разрешителни за изграждане на еднофамилна двуетажна жилищна сграда с РЗП 418 кв.м. Сключен е договор със строителен надзор. Може да се стартира строителството веднага. Предвиден е двор с площ 200 кв.м. Разпределение: Първо ниво Дневна с кухня и трапезария в общо пространство, санитарен възел, сервизно помещение, гараж за два автомобила и две паркоместа пред него. Второ ниво Две спални със собствени бани и отделни дрешници тип будоар, два балкона и мокро помещение. Покривно ниво Покривна тераса с външна кухня, кът за релакс и изводи за джакузи. Покривът включва изводи за фотоволтаична система. Имотът ти дава готова концепция и пълна административна готовност за изграждане на модерен семеен дом.

Модерна нова еднофамилна сграда с изчистена архитектурна визия, функционално разпределение и просторни помещения с отлична осветеност. Проектът съчетава комфорт, енергийна ефективност и съвременни технологични решения. Предвидени са просторна покривна тераса, възможност за фотоволтаична система и удобства, отговарящи на висок стандарт на обитаване. Дом, който съчетава стил, практичност и дългосрочна стойност.

Карпузица е един от най-спокойните и зелени квартали в югозападна София. Районът съчетава тишина, чист въздух и нискоетажно застрояване с бърз достъп до основни булеварди, градски транспорт, училища и търговски обекти. Локацията е предпочитана от семейства заради баланса между уединение и удобна връзка с динамиката на града.

• Бърз достъп до транспорт – на пешеходно разстояние до парцела има автобусни линии и трамвайни спирки, които свързват квартала с центъра и други райони на София. Това дава удобство както за всекидневни пътувания, така и за връзки с основни булеварди. • Училища и детски градини – освен близкото 26 СУ "Йордан Йовков", районът предлага допълнителни учебни и детски заведения на няколко минути пеша.  • Медицински услуги в близост – болница “Райна Княгиня”, детска клиника и медицински център са на кратко разстояние, което е важно за семейства и ежедневни нужди. • Търговски и битови удобства на разстояние пеша – супермаркети, хранителни магазини, пекарни и дребни услуги са лесно достъпни без нужда от автомобил. • Близък парк и зелени площи – в квартала има малки зелени зони и близост до по-големи паркови пространства, подходящи за разходки и спорт на открито. • Развиваща се квартална среда – районът привлича ново строителство и инвестиции, което поддържа активност в пазара на имоти и потенциална бъдеща стойност. • Комбинация от тишина и достъп до градски удобства – въпреки спокойствието и ниската динамика в жилищната част, на няколко минути има активни услуги и ежедневни точки за обслужване.   

Обади се СЕГА и цитирай този код 685677.

6 купувача разглеждат този имот.

Локацията е приблизителна

Други имоти в тази локация

Транспорт

Проверете маршрут

Изпратете запитване

Павлина Василева

Павлина Василева

Консултант

Контакти

Форма за запитване

Подобни имоти

Пиши ни ново
Заяви оглед