0888 11 22 00
Най-добрият сайт на агенция
за имоти според потребителите

Тристаен апартамент, продажба, София, кв. Красна поляна 3

Код на имота: 661306
XXXXX, XXXXXXXXXX
96 кв.м.
XXX
Тристаен апартамент
399 преглеждания
X €/кв.м.

Описание

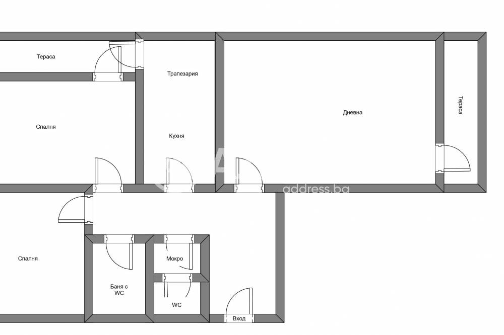
Площ: 96 кв.м.

Тип Имот: Тристаен апартамент

Етаж: 3

Ниво на обзавеждане: Частично обзаведен

Отопление: ТЕЦ

 Тристаен апартамент находящ се в най предпочитаната част на жк Красна поляна, широки между блокови пространсва, свободно паркиране, пешеходна част пред блока с голям избор от магазини, заведения, аптеки, банки и фитнес; Апартаментът има следното разпределение: антре, коридор, просторен хол, самостоятелна кухня с трапезария, две спални помещения, баня със санитарен възел, самостоятелен санитарен възел, мокро помещение и две тераси; Прилежащо мазе към апартамента;  

Сграда ЕПК от 1981г.; Контролиран достъп; Асансьор;  

  Районът се обслужва от автобуси № 72, 77, 83, 11, 60 и трамваи № 11 и 22; В близост до метростанция Константин Величков;

Апартаментът е с четири самостоятелни помещения, което позволява преустройство в апартамент с три самостоятелни спални помещения; Квартал с изградена инфраструктура;

Обади се СЕГА и цитирай този код 661306.

6 купувача разглеждат този имот.

Локацията е приблизителна

Други имоти в тази локация

Транспорт

Проверете маршрут

Изпратете запитване

Валентина Александрова

Валентина Александрова

Консултант

Контакти

Подобни имоти

Пиши ни ново
Заяви оглед