0888 11 22 00
Най-добрият сайт на агенция
за имоти според потребителите

Двустаен апартамент, продажба, София, кв. Левски

Код на имота: 656108

Двустаен апартамент, продажба, София

Двустаен апартамент, София, Левски, 656108, Снимка 1
Двустаен апартамент, София, Левски, 656108, Снимка 2
Двустаен апартамент, София, Левски, 656108, Снимка 3
Двустаен апартамент, София, Левски, 656108, Снимка 4
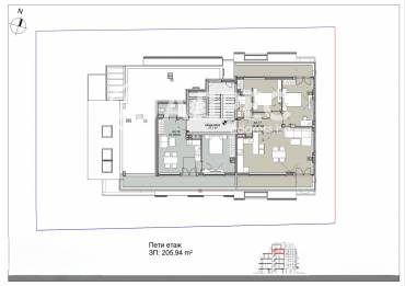
Скица
5+ огледа
"CITY SERENITY - I" - (Градско спокойствие) - 7 свободни Вижте всички свободни апартаменти в сградата
София, Левски
82 кв.м.
131 200
Двустаен апартамент
Купи само за /мес.
г.
560 преглеждания
1600 €/кв.м.

Описание

Площ: 82 кв.м.

Тип Имот: Двустаен апартамент

Етаж: 5

Ниво на обзавеждане: Шпакловка и замазка

Отопление: Друго

Градско спокойствие в чудесна сграда на перфектна лкоация в кв. Васил Левски. Двустаен апартамент с площ от 81,85 кв.м на пети жилищен етаж с изложение юг-запад. Разполагащ със спалня, хол, кухня и трапезария, баня с тоалетна и хубава южна тераса. Към всеки апартамент има склад на ниво - 1 в сутеренната част на сградата. Имотът се предава на шпакловка и замазка с изводи за климатици и монтирани ключове и контакти. Цената е без ДДС. Инвеститорът предлага завършване до ключ.

Модерна нова сграда заобиколена само от хубави и съвремени къщи с добре поддържани дворове.

Квартал Васил Левски, в непосредствена близост до Ботевградско шосе, което осигурява бърз и удобен достъп както до центъра на София, така и до околовръстния път и изходите от града. Автобус 90, трамвай 22, училище, детска градина. Само на няколко минути с кола се намира и Сердика Център — един от най-големите търговски комплекси в столицата, предлагащ богато разнообразие от магазини, услуги и заведения.

Сградата е разположена в район с добре развита инфраструктура и отлична транспортна достъпност, включваща автобусни линии и метро. В непосредствена близост се намират училища, детски градини и разнообразие от магазини, осигуряващи всички ежедневни удобства. Районът предлага и зелени площи, допринасящи за по-спокойна атмосфера на живот.  

Обади се СЕГА и цитирай този код 656108.

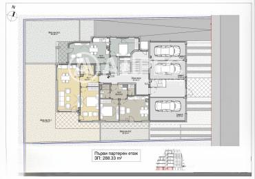
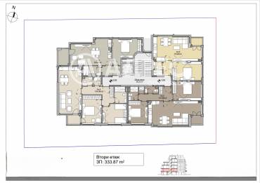
Други апартаменти в сградата

25 купувача разглеждат този имот.

Локацията е приблизителна

Други имоти в тази локация

Транспорт

Проверете маршрут

Изпратете запитване

Павлина Василева

Павлина Василева

Консултант

Контакти

Форма за запитване

Подобни имоти

Пиши ни ново
Заяви оглед

За квартал Левски, София

Квартал Левски е един жилищна зона, позициониран в североизточната част на град София, част от район „Подуяне“. Разположен в близост до основни пътни артерии като бул. „Ботевградско шосе“ и бул. „Владимир Вазов”, с граница към квартал Враждебна и Хаджи Димитър. Кварталът съчетава периферното си местоположение с удобствата и близостта до динамиката на градската среда.

 

Жилищният фонд в квартала е разнообразен – в по-старите части преобладават еднофамилни къщи, а в по-новите зони има панелни и тухлени жилищни блокове, както и модерни жилищни комплекси, които се реализират в последните години.

Транспортната свързаност на квартала се осигурява от автобусни линии – №1, 78, 120 и други, както и се очаква да бъде изградена връзка с метрото по линия М3.  В допълнение близостта до с ключови булеварди в града предоставя възможности за придвижване и с автомобил към останалите части на града.

 

Образователната инфраструктура на района е изградена от основни училища като 199 ОУ „Св. Апостол Йоан Богослов“, както и гимназии – СУ 130 Стефан Караджа, а за обучението на по-малките деца са налични детски градини – ДГ 92 „Мечта“ и 91 ОДЗ „Слънчев кът“. Това прави квартал Левски подходящо място за живот за семейства с деца.

Медицинската инфраструктура включва близки поликлиники и медицински центрове, както и частни кабинети, а специализирани и болнични услуги са достъпни в съседните по-големи градски райони. 

 

Кварталът е облагороден с наличието на  редица супермаркети, квартални магазинчета, аптеки, клонове на банки и други различни видове услуги, които удовлетворяват ежедневните потребности на жителите. Зелените площи и пространствата между сградите, заедно с близостта до Стадион „Георги Аспарухов“, създават приятна и озеленена градска среда, подходяща както за разходки и почивка, така и за спортни активности.
Съчетанието между стратегическа локация, изградена инфраструктура и разнообразен жилищен фонд прави квартал Левски подходящ избор за покупка на имот сред семейства с деца, млади хора и инвеститори.
 

Независимо дали търсите уютно студио, просторен апартамент или къща, старо или ново строителство, обзаведени или необзаведени, обявите ни включват разнообразни имоти с функционално разпределение, които отговарят на различни бюджети и предпочитания. 

 

При нас може да откриете различни типове жилища и бизнес имоти в всички райони и квартали на София:

<>>  едностайни апартаменти в София
<>>  двустайни апартаменти в София
<>>  тристайни апартаменти в София
<>>  многостайни апартаменти в София
<>>  къщи в София
<>>  офиси и офис сгради в София
<>>  търговски площи в София
 

 
Нашите брокери недвижими имоти, специализирали в процеса на избор, договаряне и  осъществяване на сделки с имоти, ще ви съпътстват през целия процес - сравнение на оферти, провеждане на огледи и преговори, запознаване и изготвяне на юридическа документация за покупка на мечтания от вас дом.
 
Тук може да се запознаете и с местоположението на офисите на АДРЕС в София.