0888 11 22 00
Най-добрият сайт на агенция
за имоти според потребителите

Двустаен апартамент, продажба, София, кв. Левски

Код на имота: 685491

Двустаен апартамент, продажба, София

Двустаен апартамент, София, Левски, 685491, Снимка 1
Скица
София, Левски
74 кв.м.
145 906
Двустаен апартамент
Купи само за /мес.
г.
147 преглеждания
1972 €/кв.м.

Описание

Площ: 74 кв.м.

Тип Имот: Двустаен апартамент

Етаж: 4

Ниво на обзавеждане: Шпакловка и замазка

Отопление: Друго

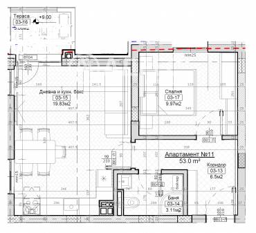
Апартамент 11 със склад 12- Двустаен апартамент на четвърти етаж, кота +9,00м. с РЗП- 73,69кв.м. и ЗП-53,00кв.м. Разпределение: антре, дневна с кухненски бокс и трапезария-19,83кв.м., спалня- 9,97кв.м. баня с тоалетна -3,11кв.м. и тераса. Налични ПМ и гаражи. Нова шестетажна, жилищна сграда в кв. Левски с 16 апартамента – 11 двустайни и 5 тристайни, с гаражи и паркоместа. Разработена е със сутерен, партер, три етажа и две мансардни нива. В подземното ниво са ситуирани гаражи и паркоместа. На партерното ниво има гаражи, жилище и открити паркоместа. Останалите етажи са решени с двустайни и тристайни апартаменти. Складове към всеки имот включени в цената. Предвидено отопление с климатици мултисплит система.

Качествена енергийно ефективна сграда с луксозни общи части. Изпълнява се с висок клас материали: Тухли Wienerberger, Топлоизолационна система BAUMIT, Шесткамерна PVC дограма с троен стъклопакет, Луксозни общи части. Паркоместа – 25 000 €; Гаражи – от 35 000 €

Комуникативна локация с бърз достъп до централните части на града, училища, детски градини, магазини и градски транспорт.

Район с изградена инфраструктура.

Обади се СЕГА и цитирай този код 685491.

Други апартаменти в сградата

Купувачите вече разглеждат този имот.

Локацията е приблизителна

Други имоти в тази локация

Транспорт

Проверете маршрут

Изпратете запитване

Веска Георгиева

Веска Георгиева

Консултант

Контакти

Форма за запитване

Подобни имоти

Пиши ни ново
Заяви оглед

За квартал Левски, София

Квартал Левски е един жилищна зона, позициониран в североизточната част на град София, част от район „Подуяне“. Разположен в близост до основни пътни артерии като бул. „Ботевградско шосе“ и бул. „Владимир Вазов”, с граница към квартал Враждебна и Хаджи Димитър. Кварталът съчетава периферното си местоположение с удобствата и близостта до динамиката на градската среда.

 

Жилищният фонд в квартала е разнообразен – в по-старите части преобладават еднофамилни къщи, а в по-новите зони има панелни и тухлени жилищни блокове, както и модерни жилищни комплекси, които се реализират в последните години.

Транспортната свързаност на квартала се осигурява от автобусни линии – №1, 78, 120 и други, както и се очаква да бъде изградена връзка с метрото по линия М3.  В допълнение близостта до с ключови булеварди в града предоставя възможности за придвижване и с автомобил към останалите части на града.

 

Образователната инфраструктура на района е изградена от основни училища като 199 ОУ „Св. Апостол Йоан Богослов“, както и гимназии – СУ 130 Стефан Караджа, а за обучението на по-малките деца са налични детски градини – ДГ 92 „Мечта“ и 91 ОДЗ „Слънчев кът“. Това прави квартал Левски подходящо място за живот за семейства с деца.

Медицинската инфраструктура включва близки поликлиники и медицински центрове, както и частни кабинети, а специализирани и болнични услуги са достъпни в съседните по-големи градски райони. 

 

Кварталът е облагороден с наличието на  редица супермаркети, квартални магазинчета, аптеки, клонове на банки и други различни видове услуги, които удовлетворяват ежедневните потребности на жителите. Зелените площи и пространствата между сградите, заедно с близостта до Стадион „Георги Аспарухов“, създават приятна и озеленена градска среда, подходяща както за разходки и почивка, така и за спортни активности.
Съчетанието между стратегическа локация, изградена инфраструктура и разнообразен жилищен фонд прави квартал Левски подходящ избор за покупка на имот сред семейства с деца, млади хора и инвеститори.
 

Независимо дали търсите уютно студио, просторен апартамент или къща, старо или ново строителство, обзаведени или необзаведени, обявите ни включват разнообразни имоти с функционално разпределение, които отговарят на различни бюджети и предпочитания. 

 

При нас може да откриете различни типове жилища и бизнес имоти в всички райони и квартали на София:

<>>  едностайни апартаменти в София
<>>  двустайни апартаменти в София
<>>  тристайни апартаменти в София
<>>  многостайни апартаменти в София
<>>  къщи в София
<>>  офиси и офис сгради в София
<>>  търговски площи в София
 

 
Нашите брокери недвижими имоти, специализирали в процеса на избор, договаряне и  осъществяване на сделки с имоти, ще ви съпътстват през целия процес - сравнение на оферти, провеждане на огледи и преговори, запознаване и изготвяне на юридическа документация за покупка на мечтания от вас дом.
 
Тук може да се запознаете и с местоположението на офисите на АДРЕС в София.