0888 11 22 00
Най-добрият сайт на агенция
за имоти според потребителите

Тристаен апартамент, продажба, София, кв. Лозенец

Код на имота: 691901

Тристаен апартамент, продажба, София

Тристаен апартамент, София, Лозенец, 691901, Снимка 1
Тристаен апартамент, София, Лозенец, 691901, Снимка 2
Новo
София, Лозенец
130 кв.м.
612 000
Тристаен апартамент
Купи само за /мес.
г.
1 преглеждания
4708 €/кв.м.

Описание

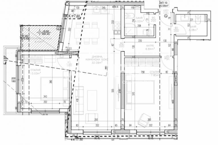
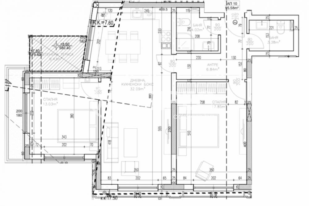
Площ: 130 кв.м.

Тип Имот: Тристаен апартамент

Етаж: 4

Ниво на обзавеждане: Шпакловка и замазка

Отопление: ТЕЦ

Представяме Ви модерен жилищен проект, съчетаващ функционалност, комфорт и висок клас строителство. Сградата е проектирана с един вход, стълбище и асансьор, осигуряващи удобен и безпрепятствен достъп от ниво терен, включително за хора с намалена подвижност. Жилищната част включва разнообразие от апартаменти – двустайни, тристайни и четиристайни, както и един просторен мезонет. Всички жилища са проектирани с ясно обособени дневни и нощни зони, с цел максимален комфорт и ефективно използване на пространството. Към имотите са включени складови помещения (мазета), както и възможности за паркиране в рамките на сградата. ЦЕНАТА Е БЕЗ ВКЛЮЧЕН ДДС!

Сградата е изпълнена с висок клас материали и съвременни строителни технологии: Монолитна стоманобетонна конструкция Хидроизолация от висок клас с материали на Penetron Външни и вътрешни тухлени зидове от Wienerberger Вентилируема фасада с HPL панели и каменна вата PVC дограма Salamander с троен стъклопакет Покрив с топло- и хидроизолация и битумни керемиди Централно отопление (ТЕЦ) и подготовка за климатици Луксозни общи части по дизайнерски проект Висок клас асансьор Orona Контролиран достъп, видеонаблюдение и домофонна система Паркирането е решено чрез подземен гараж с асансьорна платформа, както и гаражи и паркоместа на ниво терен, с осигурени маневрени пространства и възможност за изграждане на зарядни станции за електромобили.

Сградата се намира в комуникативен и добре развит район на гр. София, с бърз достъп до основни пътни артерии и градски транспорт. В близост са разположени търговски обекти, училища, детски градини и зони за отдих, което осигурява удобство и комфорт в ежедневието. Локацията предлага отличен баланс между спокойна жилищна среда и бърз достъп до централната част на града.

Разнообразие от апартаменти и мезонет Функционални разпределения с отделени дневни и нощни зони Висок клас строителство и материали Подземен гараж с асансьорна платформа Осигурени гаражи и паркоместа Подготовка за електромобили Луксозни общи части и контролиран достъп Подходящ както за живеене, така и за инвестиция Спокойна и добре организирана жилищна среда

Обади се СЕГА и цитирай този код 691901.


Оферта от партньор на Адрес

Други апартаменти в сградата

Купувачите вече разглеждат този имот.

Локацията е приблизителна

Други имоти в тази локация

Транспорт

Проверете маршрут

Изпратете запитване

Никола Яначков

Никола Яначков

Консултант

Контакти

Форма за запитване

Подобни имоти

Пиши ни ново
Заяви оглед

За квартал Лозенец, София

Квартал Лозенец, един от по-старите и утвърдени райони на София е разположен на хълм югоизточно от центъра, а застрояването му започва още през 20-те години на XX век. Лозенец граничи с кварталите Център, Иван Вазов, Хладилника, Изток и Кръстова вада и е разделен на Горен и Долен Лозенец. Познат е и като „Журналистическия квартал“, тъй като в частта му, където днес е пл. „Журналист“, са се намирали домове на редица забележителни български писатели, поети и обществени дейци, сред които Валери Петров, Михаил Андреев, Минчо Дилянов и други, чието наследство оставя траен отпечатък върху културния облик на района.

Транспортна свързаност на квартала е добре развита и се осъществява от метростанции Джеймс Баучер, Европейски съюз и Витоша, както и ключови пътни артерии като бул. Черни връх, бул. Арсеналски и бул. Джеймс Баучер. Районът е свързан с останалата част на София и чрез автобусни линии 88, 94, 102, 120, 604, както и трамваи 10 и 15, което осигурява бързо и удобно придвижване както до центъра, така и до ключови бизнес зони.

Лозенец предлага разнообразие от жилища, от стари кооперации с впечатляваща архитектура, до модерни луксозни комплекси. Горен Лозенец се отличава с няколко дипломатически резиденции и престижни имоти, създавайки атмосфера на сигурност и висок стандарт на живот. 

Богато озеленените улици, просторните дворове и нискоетажните жилищни сгради в старата част на Лозенец го утвърждават като „зелената перла“ на София. В квартала се намират редица училища и детски градини, търговски обекти, както и Университетска болница „Лозенец". В близост са Южен парк, Paradise Center, болница Токуда, както и  разнообразие от търговски обекти, и ключови бизнес сгради.

Лозенец привлича предимно високо квалифицирани професионалисти, служители на международни компании, дипломати и семейства, които търсят удобна градска локация  и лесен достъп до бизнес и административни центрове. Районът е предпочитан както за дългосрочно живеене, така и с инвестиционни цели.

В комбинация с централната му локация, добре развита инфраструктура, лесен достъп до градски транспорт, осигуряващ бърза връзка с центъра, близостта до Южен парк, наличието на големи търговски центрове, лечебни и учебни заведения, както и престижният му исторически статут, нареждат Лозенец сред най-желаните райони в София за покупка на недвижим имот.

Независимо дали търсите уютно студио, просторен апартамент или къща, старо или ново строителство, обзаведени или необзаведени, обявите ни включват разнообразни имоти с функционално разпределение, които отговарят на различни бюджети и предпочитания. 

Нашите брокери недвижими имоти, специализирали в процеса на избор, договаряне и  осъществяване на сделки с имоти, ще ви съпътстват през целия процес - сравнение на оферти, провеждане на огледи и преговори, запознаване и изготвяне на юридическа документация за покупка на мечтания от вас дом.
 
Тук може да се запознаете и с местоположението на офисите на АДРЕС в София.