0888 11 22 00
Най-добрият сайт на агенция
за имоти според потребителите

Двустаен апартамент, продажба, София, кв. Люлин 5

Код на имота: 621552

Двустаен апартамент, продажба, София

Двустаен апартамент, София, Люлин 5, 621552, Снимка 1
Двустаен апартамент, София, Люлин 5, 621552, Снимка 2
Двустаен апартамент, София, Люлин 5, 621552, Снимка 3
Двустаен апартамент, София, Люлин 5, 621552, Снимка 4
Двустаен апартамент, София, Люлин 5, 621552, Снимка 5
Двустаен апартамент, София, Люлин 5, 621552, Снимка 6
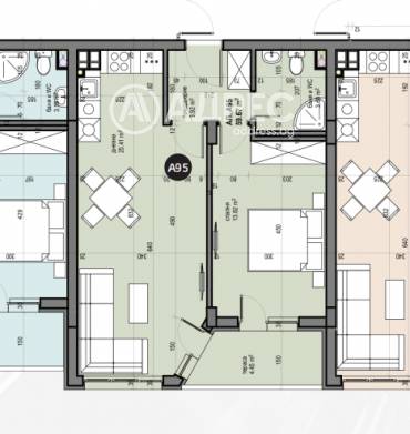
Скица
София, Люлин 5
70 кв.м.
111 088
Двустаен апартамент
Купи само за /мес.
г.
258 преглеждания
1587 €/кв.м.

Описание

Площ: 70 кв.м.

Тип Имот: Двустаен апартамент

Етаж: 8

Ниво на обзавеждане: Шпакловка и замазка

Отопление: Друго

Схеми на плащане: първи вариант: 20% след подписване на Предварителен договор; 20% на кота "0"; 20% на кота на апартамента; 10% на Акт 14; 20% на Акт 15 и 10% след представяне на Разрешение за ползване в деня на нотариалната сделка; втори вариант: 20% след подписване на Предварителен договор; 40% на Акт 14; 20% на Акт 15 и 20% след представяне на Разрешение за ползване в деня на нотариалната сделка; трети вариант: 20% след подписване на Предварителен договор и 80% след представяне на Разрешение за ползване в деня на нотариалната сделка.

Комплекс от затворен тип с контрол на достъпа. Състои се от две жилищни сгради със 119 апартамента и ателиета и 129 паркоместа и гаражи. Изгражда се с топлоизолационна система от 10 см. със завършек мазилка на "Baumit Creative Top". Дограмата е с троен стъклопакет и стъкло тип четири сезона. Отоплението е на ток. Свързаност към централната канализационна мрежа. Асансьори на "Orona". Степен на завършеност: под на замазка, стени на фина шпакловка и конзоли, без ключове и контакти. Жива охрана, видеонаблюдение и видеодомофон. Предварително избраната фирма за поддръжка е "Образцов вход", за първите 12 месеца, като първата година е за сметка на инвеститора, а след това по решение на етажната собственост. Срок за завършване на проекта: 36 месеца. Други сгради на инвеститора: "Space Tower".

Намира са в една от най-бързо развиващите се части на квартал "Люлин", с множество нови сгради, които изцяло променят облика на микрорайона. С удобен градски транспорт, магазини, инфраструктура и големи междублокови пространства.

Качеството и мащаба на проекта, големият му двор, детската площадка и игрището за мини футбол, дават на всеки нов жител нужния комфорт и пространство за високо качество на живот.

Обади се СЕГА и цитирай този код 621552.


Оферта от партньор на Адрес

Други апартаменти в сградата

Купувачите вече разглеждат този имот.

Локацията е приблизителна

Други имоти в тази локация

Транспорт

Проверете маршрут

Изпратете запитване

Борислав Иванов

Борислав Иванов

Консултант

Контакти

Форма за запитване

Подобни имоти

Пиши ни ново
Заяви оглед

За квартал Люлин, София

Люлин е най-големият жилищен район на София, разположен в западната част на града. Районът включва 11 микрорайона и е дом за приблизително 100 000 жители. Изграждането му започва през 70-те години на XX век, като от самото начало е планиран със самостоятелен център и добре структурирана инфраструктура, което придава на квартала облик на отделен град в рамките на столицата.

 

Люлин се намира западно от централната градска част, като основните транспортни артерии са бул. „Царица Йоанна“, бул. „Сливница“, бул. „Панчо Владигеров“ и бул. „Добринова скала“. Кварталът разполага с добра транспортна достъпност, обслужва се от три метростанции по първата линия на метрото – Люлин”, „Западен парк” и „Сливница”, както и от автобусни линии 309, 310, 111, 108, 42, 43, 54, 82, трамвайна линия 8 и тролейбусни линии 6 и 7, осигуряващи удобна връзка с центъра и останалите части на София. 

 

Люлин се отличава с разнообразен жилищен фонд. В различните микрорайони могат да се открият панелни блокове от 70-те и 80-те години, ЕПК сгради, както и ново строителство с модерна визия и функционални разпределения. Това разнообразие създава широк избор от имоти в различни ценови сегменти и удовлетворява както нуждите на млади семейства, така и на инвеститори, търсещи дългосрочна доходност. Районът е предпочитан освен за постоянно живеене, така и за инвестиции, насочени към отдаване под наем.
На територията на Люлин функционират държавни училища и общински детски градини. Жителите имат достъп до множество магазини от големи търговски вериги, кооперативен пазар, спортни комплекси и плувни басейни. Медицинското обслужване е осигурено от няколко поликлиники, многопрофилна болница и частни специализирани кабинети.

 

Едно от основните предимства на квартала е близостта до Западен парк, вторият по големина парк в София, който предлага възможности за отдих и спорт на открито.
Благодарение на добрата инфраструктура, достъпните цени и непрекъснатото обновяване на жилищния фонд, Люлин остава един от най-активните райони на София по отношение на сделки с недвижими имоти. 

 

Независимо дали търсите уютно студио, просторен апартамент или къща, старо или ново строителство, обзаведени или необзаведени, обявите ни включват разнообразни имоти с функционално разпределение, които отговарят на различни бюджети и предпочитания. 

 

Нашите брокери недвижими имоти, специализирали в процеса на избор, договаряне и осъществяване на сделки с имоти, ще ви съпътстват през целия процес - сравнение на оферти, провеждане на огледи и преговори, запознаване и изготвяне на юридическа документация за покупка на мечтания от вас дом.
 
Тук може да се запознаете и с местоположението на офисите на АДРЕС в София.