0888 11 22 00
Най-добрият сайт на агенция
за имоти според потребителите

Тристаен апартамент, продажба, София, кв. Люлин 8

Код на имота: 631270
XXXXX, XXXXXXXXXX
81 кв.м.
XXX
Тристаен апартамент
518 преглеждания
X €/кв.м.

Описание

Площ: 81 кв.м.

Тип Имот: Тристаен апартамент

Етаж: 5

Ниво на обзавеждане: Шпакловка и замазка

Отопление: ТЕЦ

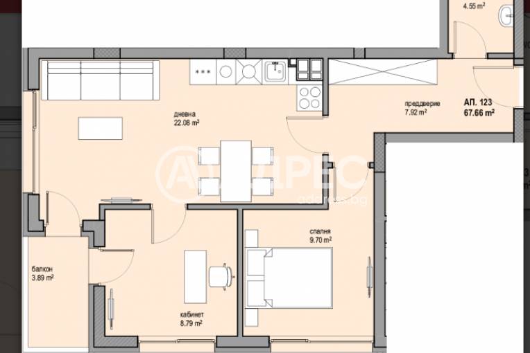
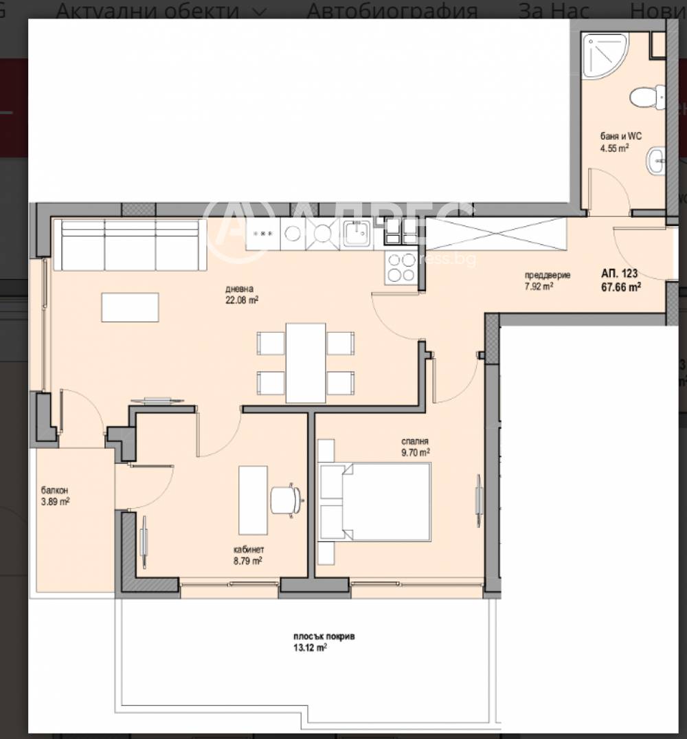
Тристаен апартамент със застроена площ от 67,66 кв.м. Състои се от: преддверие, трапезария с кухненски бокс,  непреходни спални, баня с тоалетна и тераса двор 13кв.м. Изложението е З. Има възможност за закупуване на паркомясто или гараж.

Сградата се състои от два входа и шест надземни етажа, разпределени съответно: – складовите помещения са позиционирани в сутеренния етаж, където и паркирането е решено с очертани единични паркоместа, двойни гаражни клетки, както и с външни паркоместа; – партерен етаж – обособени са две търговски помещения, два апартамента и гаражи; – от втори и до шести жилищен етаж – двустайни и тристайни апартаменти с функционално разпределение. Акт 14 се очаква през месец Юни 2025 година.

Намира се до метростанция "Сливница" в ж.к. "Люлин 8". Районът има добре изградена транспортна инфраструктура и се обслужва от всички видове градски транспорт по главните за столицата артерии: бул. "Сливница", бул. "Пенчо Владигеров", ул. "Филиповско шосе" и Софийски околовръстен път. На 5 км. от пл. "Лъвов мост" и Централна гара София. В близост са ж.к. "Обеля", ж.к. "Западен парк", ж.к. "Надежда", ж.к. "Света Троица" и кв. "Модерно предградие".

Влаганите материали в строителството и доставчиците са доказали качеството си във времето. Функционални разпределения. Развита инфраструктура. Добро и балансирано съотношение между качество и цена. Непосредствената близост на ж.к. "Люлин" със Софийски околовръстен път дава бърз достъп до изхода на столицата в посока Сърбия и Гърция.  

Обади се СЕГА и цитирай този код 631270.


Оферта от партньор на Адрес

Други апартаменти в сградата

Купувачите вече разглеждат този имот.

Локацията е приблизителна

Други имоти в тази локация

Транспорт

Проверете маршрут

Изпратете запитване

Павлина Мутафчийска

Павлина Мутафчийска

Консултант

Контакти

Подобни имоти

Пиши ни ново
Заяви оглед

За квартал Люлин, София

Люлин е най-големият жилищен район на София, разположен в западната част на града. Районът включва 11 микрорайона и е дом за приблизително 100 000 жители. Изграждането му започва през 70-те години на XX век, като от самото начало е планиран със самостоятелен център и добре структурирана инфраструктура, което придава на квартала облик на отделен град в рамките на столицата.

 

Люлин се намира западно от централната градска част, като основните транспортни артерии са бул. „Царица Йоанна“, бул. „Сливница“, бул. „Панчо Владигеров“ и бул. „Добринова скала“. Кварталът разполага с добра транспортна достъпност, обслужва се от три метростанции по първата линия на метрото – Люлин”, „Западен парк” и „Сливница”, както и от автобусни линии 309, 310, 111, 108, 42, 43, 54, 82, трамвайна линия 8 и тролейбусни линии 6 и 7, осигуряващи удобна връзка с центъра и останалите части на София. 

 

Люлин се отличава с разнообразен жилищен фонд. В различните микрорайони могат да се открият панелни блокове от 70-те и 80-те години, ЕПК сгради, както и ново строителство с модерна визия и функционални разпределения. Това разнообразие създава широк избор от имоти в различни ценови сегменти и удовлетворява както нуждите на млади семейства, така и на инвеститори, търсещи дългосрочна доходност. Районът е предпочитан освен за постоянно живеене, така и за инвестиции, насочени към отдаване под наем.
На територията на Люлин функционират държавни училища и общински детски градини. Жителите имат достъп до множество магазини от големи търговски вериги, кооперативен пазар, спортни комплекси и плувни басейни. Медицинското обслужване е осигурено от няколко поликлиники, многопрофилна болница и частни специализирани кабинети.

 

Едно от основните предимства на квартала е близостта до Западен парк, вторият по големина парк в София, който предлага възможности за отдих и спорт на открито.
Благодарение на добрата инфраструктура, достъпните цени и непрекъснатото обновяване на жилищния фонд, Люлин остава един от най-активните райони на София по отношение на сделки с недвижими имоти. 

 

Независимо дали търсите уютно студио, просторен апартамент или къща, старо или ново строителство, обзаведени или необзаведени, обявите ни включват разнообразни имоти с функционално разпределение, които отговарят на различни бюджети и предпочитания. 

 

Нашите брокери недвижими имоти, специализирали в процеса на избор, договаряне и осъществяване на сделки с имоти, ще ви съпътстват през целия процес - сравнение на оферти, провеждане на огледи и преговори, запознаване и изготвяне на юридическа документация за покупка на мечтания от вас дом.
 
Тук може да се запознаете и с местоположението на офисите на АДРЕС в София.