0888 11 22 00
Най-добрият сайт на агенция
за имоти според потребителите

Многостаен апартамент, продажба, София, кв. Младост 2

Код на имота: 677373

Многостаен апартамент, продажба, София

Многостаен апартамент, София, Младост 2, 677373, Снимка 1
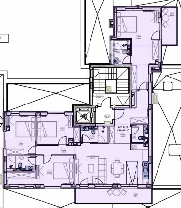
Скица
М РЕЗИДЕНС КИПРИЯН - 7 свободни Вижте всички свободни апартаменти в сградата
София, Младост 2
218 кв.м.
515 000
Многостаен апартамент
Купи само за /мес.
г.
294 преглеждания
2358 €/кв.м.

Описание

Площ: 218 кв.м.

Тип Имот: Многостаен апартамент

Етаж: 6

Ниво на обзавеждане: Шпакловка и замазка

Отопление: ТЕЦ

Многостаен апартамент състоящ се от: антре, четири спални, три бани с тоалетни, тоалетна, всекидневна с кухненски бокс и две тераси. Перлата в сградата, на последен етаж, единствен на етажа с мечтана гледка към зеленина и природа. Сграда, която създава уют още от входа - чисти линии, много светлина и онова тихо усещане за подреден дом, което не можеш да сбъркаш.  Апартаментите са проектирани умно и комфортно, така че да се живее лесно, без компромиси и без излишни обещания.

Сградата комбинира модерна визия с надежни материали и добре завършени общи части. Апартаментите са светли, функционални и подходящи както за семейства, така и за хора, които търсят спокоен и подреден дом. Осигурен е контрол на достъпа, асансьор от висок клас, гаражи и паркоместа.

Намира се на удобно място, където всичко необходимо е на една крачка разстояние - магазини, училища, транспорт и зелени площи. Локацията осигурява бърз достъп до ключови булеварди и прави ежедневието значително по-лесно и организирано.

Мястото е истинско удобство- метрото, парковете, търговските обекти и училищата са точно там, където трябва да бъдат: на една крачка разстояние. А инвеститора, който е й изпълнител, е затвърдена фугура в изграждането на сгради. Работата му през годините на няколко пъти е оценена и наградена с почтното звание - "Сграда На Годината".

Обади се СЕГА и цитирай този код 677373.

Други апартаменти в сградата

Купувачите вече разглеждат този имот.

Локацията е приблизителна

Други имоти в тази локация

Транспорт

Проверете маршрут

Изпратете запитване

Величко Кралев

Величко Кралев

Консултант

Контакти

Форма за запитване

Подобни имоти

Пиши ни ново
Заяви оглед

За квартал Младост, София

Квартал Младост се приема за един от най-бързо развиващите се и модерни квартали в София, особено след откриването на най-големия бизнес комплекс в Източна Европа – Бизнес парк София. Кварталът се намира в източната част на столицата и е разделен на 5 микрайона: Младост 1, Младост 1А, Младост 2, Младост 3 и Младост 4.
Първоначално е предвиден като периферен квартал на София, но след отварянето на Бизнес парк София и поетапното пускане на четирите метростанции в квартала, Младост се оказва важен бизнес и транспортен хъб на столицата, като кварталът става и едно от местата с най-висока средна заплата на работещи в столицата. Това дава и много възможности за намиране на работно място за млади хора, за които професионалната реализация е от изключително голямо значение.


Транспортната достъпност на квартала е сред основните му предимства. През района преминават основни пътни артерии като бул. „Цариградско шосе“, бул. „Александър Малинов“, бул. „Андрей Ляпчев“ и бул. „Йерусалим“, които осигуряват бърза връзка с централните части на София, летище София и Околовръстния път. Младост се обслужва от няколко метростанции по линии М1 и М4 – „Младост 1“, „Младост 3“, „Бизнес парк София“, „Александър Малинов“, „Акад. Ал. Теодоров - Балан” и „ИЕЦ – Цариградско шосе“, което гарантира удобен и бърз обществен транспорт. Допълнително районът се обслужва от множество автобусни №4, 76, 88 и др., както и тролейбусни линии №3 и 5, които осигуряват връзки с почти всички части на града.

 

Жилищната среда в Младост е разнообразна и предлага широк избор от имоти. В по-старите части на квартала преобладават панелни и ЕПК сгради от 70-те и 80-те години, докато в Младост 3, 4 и около Бизнес парк София са реализирани значителен брой съвременни жилищни комплекси с модерна архитектура, подземни гаражи и контрол на достъпа. Това разнообразие от застрояване позволява избор както за собствено ползване, така и за инвестиционни цели, включително отдаване под наем.
На територията на Младост функционират множество общински детски градини и училища, сред които 125 СУ „Боян Пенев“, 144 СУ „Народни будители“, 145 ОУ „Симеон Радев“, както и професионални гимназии и частни образователни центрове. 

 

Здравното обслужване в квартала е добре обезпечено чрез наличието на големи болнични заведения и медицински центрове. В района и непосредствена близост се намират УМБАЛ „Св. Анна“, Acibadem City Clinic – УМБАЛ Младост, ДКЦ и УМБАЛ „Софиямед”, както и множество частни клиники, диагностични лаборатории и аптеки, осигуряващи бърз и удобен достъп до здравни услуги за жителите на квартала.

 

Търговската и обслужваща инфраструктура е силно развита. В Младост са разположени големи търговски центрове като The Mall, Business Park Sofia – търговска зона, супермаркети на водещи вериги, офис комплекси, банкови институции и разнообразие от заведения, фитнес центрове и спортни обекти. Значителни зелени площи като парк „Младост“, междублокови пространства и близостта до Витоша допринасят за по-добра среда за отдих и спорт.

 

Съчетанието от отлична транспортна свързаност, развита инфраструктура, разнообразна жилищна среда и концентрация на бизнес и услуги утвърждава квартал Младост като един от най-търсените и предпочитани райони в София за живеене, работа и инвестиции в недвижими имоти.
 

Независимо дали търсите уютно студио, просторен апартамент или къща, старо или ново строителство, обзаведени или необзаведени, обявите ни включват разнообразни имоти с функционално разпределение, които отговарят на различни бюджети и предпочитания. 

 

При нас може да откриете различни типове жилища и бизнес имоти в всички райони и квартали на София:

<>>  едностайни апартаменти в София
<>>  двустайни апартаменти в София
<>>  тристайни апартаменти в София
<>>  многостайни апартаменти в София
<>>  къщи в София
<>>  офиси и офис сгради в София
<>>  търговски площи в София
 

 
Нашите брокери недвижими имоти, специализирали в процеса на избор, договаряне и  осъществяване на сделки с имоти, ще ви съпътстват през целия процес - сравнение на оферти, провеждане на огледи и преговори, запознаване и изготвяне на юридическа документация за покупка на мечтания от вас дом.
 
Тук може да се запознаете и с местоположението на офисите на АДРЕС в София.