0888 11 22 00
Най-добрият сайт на агенция
за имоти според потребителите

Двустаен апартамент, продажба, София, кв. Оборище

Код на имота: 652996

Двустаен апартамент, продажба, София

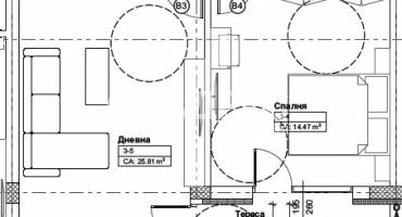
Двустаен апартамент, София, Оборище, 652996, Снимка 1
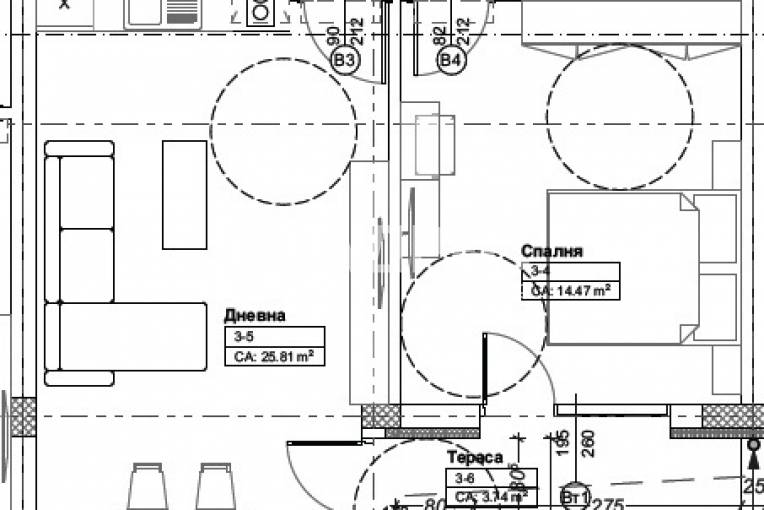
Двустаен апартамент, София, Оборище, 652996, Снимка 2
София, Оборище
83 кв.м.
290 535
Двустаен апартамент
Купи само за /мес.
г.
670 преглеждания
3500 €/кв.м.

Описание

Площ: 83 кв.м.

Тип Имот: Двустаен апартамент

Етаж: 3

Ниво на обзавеждане: Шпакловка и замазка

Отопление: Друго

Двустаен непреходен апаратемент, находящ се в един от най-атрактивните квартали на София - Оборище. Състои се от: входно антре с възмжност за портманто и с мокро помещение, баня с тоалетна, дневна с кухненски бокс и тераса, спалня. Има възможност за покупка на паркомясто или гараж. Цената е с включен ДДС. Отоплението е предвидено чрез Термопомпа с подово.

Сграда с модерна визия и архитектура, с перфектна локация и на пешеходно разстояние до Парка Заимов,  Метростанция Театрална, в сърцето на София. Луксозно завършени общи части, алуминиеви парапети, хидравличен асансьор, висок клас ПВЦ дограма, домофонна система за контролиран достъп в сградата.

Комуникативен и  желан район за живеене

Обади се СЕГА и цитирай този код 652996.


Оферта от партньор на Адрес

Други апартаменти в сградата

Купувачите вече разглеждат този имот.

Локацията е приблизителна

Други имоти в тази локация

Транспорт

Проверете маршрут

Изпратете запитване

Валентин Киров

Валентин Киров

Консултант

Контакти

Форма за запитване

Подобни имоти

Пиши ни ново
Заяви оглед

За квартал Оборище, София

Квартал Оборище е един от утвърдените и престижни централни райони на София, разположен в североизточната част на централната градска зона. Районът граничи с кварталите Център, Докторска градина и Подуяне, като обхваща територия с ясно изразен административен, жилищен и културен характер. 

 

През района преминават ключови булеварди и улици като бул. „Евлоги и Христо Георгиеви“, бул. „Янко Сакъзов“ ул, „Оборище”, които осигуряват бърз автомобилен достъп до всички части на столицата. Кварталът се обслужва от метростанции „Театрална“, „Орлов мост“ и „Софийски университет“ по линии М1 и М2. Допълнително, районът разполага с добре развита мрежа от автобусни №11, 72, тролейбусни линии №3, 4, 5 и др., трамвай №22, осигуряващи удобен градски транспорт с центъра и другите части на града.

 

Жилищната среда в Оборище се отличава с високо качество и архитектурно разнообразие. Преобладават масивни тухлени кооперации от първата половина и средата на XX век, много от които са с добре поддържани и с характерна градска визия. Наред с тях се срещат и нови жилищни сгради, реализирани с внимание към средата и съществуващата архитектура. 

 

В района и непосредствена близост се намират редица престижни учебни заведения, сред които 164 гимназия с преподаване на испански език „Мигел де Сервантес“, 38 ОУ „Васил Априлов“, Първа английска езикова гимназия, както и Национално музикално училище „Любомир Пипков“. Близостта до Софийски университет допълнително засилва академичния и интелектуален профил на района.

 

Здравното обслужване в Оборище е осигурено от ДКЦ „Вита“ и частни медицински центрове. В съседните на квартала зони се намират утвърдени лечебни заведения като УМБАЛ „Александровска“, УМБАЛ „Св. Иван Рилски“, специализирани ДКЦ, лаборатории и аптеки. 

 

Търговската и обслужваща инфраструктура е добре развита и отговаря на нуждите на централна градска зона. В Оборище са разположени супермаркети, квартални магазини, заведения, банкови институции и административни сгради. Значително предимство е наличието на зелени площи като Докторската градина, близостта до парк „Заимов“, Борисовата градина и централните градски пространства, които създават балансирана градска среда.

 

Комбинацията от централна локация, отлична транспортна свързаност, качествен жилищен фонд и пълна градска инфраструктура утвърждава квартал Оборище като един от най-предпочитаните райони в София както за дългосрочно обитаване, така и за инвестиции в недвижими имоти с устойчив профил.

Независимо дали търсите уютно студио, просторен апартамент или къща, старо или ново строителство, обзаведени или необзаведени, обявите ни включват разнообразни имоти с функционално разпределение, които отговарят на различни бюджети и предпочитания. 

 

При нас може да откриете различни типове жилища и бизнес имоти в всички райони и квартали на София:

<>>  едностайни апартаменти в София
<>>  двустайни апартаменти в София
<>>  тристайни апартаменти в София
<>>  многостайни апартаменти в София
<>>  къщи в София
<>>  офиси и офис сгради в София
<>>  търговски площи в София
 

 
Нашите брокери недвижими имоти, специализирали в процеса на избор, договаряне и  осъществяване на сделки с имоти, ще ви съпътстват през целия процес - сравнение на оферти, провеждане на огледи и преговори, запознаване и изготвяне на юридическа документация за покупка на мечтания от вас дом.
 
Тук може да се запознаете и с местоположението на офисите на АДРЕС в София.