0888 11 22 00
Най-добрият сайт на агенция
за имоти според потребителите

Тристаен апартамент, продажба, София, кв. Овча купел 2

Код на имота: 680880

Тристаен апартамент, продажба, София

Тристаен апартамент, София, Овча купел 2, 680880, Снимка 1
Тристаен апартамент, София, Овча купел 2, 680880, Снимка 2
Тристаен апартамент, София, Овча купел 2, 680880, Снимка 3
Скица
Само от Адрес
5+ огледа
София, Овча купел 2
109 кв.м.
215 050
Тристаен апартамент
Купи само за /мес.
г.
151 преглеждания
1973 €/кв.м.

Описание

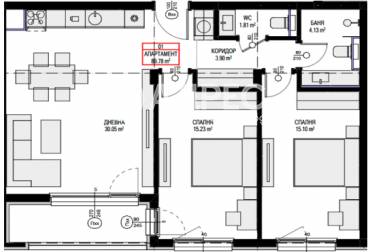
Площ: 109 кв.м.

Тип Имот: Тристаен апартамент

Етаж: 8

Ниво на обзавеждане: Шпакловка и замазка

Отопление: Газ

Модерна жилищна сграда  в Овча Купел 2, част от мащабен комплекс с обща визия и инфраструктура, от инвеститор с доказано качество на строителство и солидна репутация на пазара. Стилен дизайн и функционални разпределения, разположен в предпочитан район с удобна градска инфраструктура. Просторен тристаен апартамент, с южно изложение, състоящ се от: входно антре, дневна с трапезария и кухненски бокс, две спални, тераса, баня с тоалетна и отделна тоалетна.  

Сграда от 3 входа, на 9 етажа. Богат избор от жилища с една или две спални. Възможност за обединение. Отопление на газ. Към всеки апартамент има прилежащо мазе или склад. Контролиран достъп, асансьор и висок клас дограма.

Сградата се намира на кратко пешеходно разстояние от НБУ и метростанция "Мизия". 

Обади се СЕГА и цитирай този код 680880.

Други апартаменти в сградата

5 купувача разглеждат този имот.

Локацията е приблизителна

Други имоти в тази локация

Транспорт

Проверете маршрут

Изпратете запитване

Стоян Фотев

Стоян Фотев

Консултант

Контакти

Форма за запитване

Подобни имоти

Пиши ни ново
Заяви оглед

За квартал Овча купел, София

Квартал Овча Купел е разположен в югозападната част на София и е сред най-големите жилищни райони на столицата. Застрояването му започва още през 1914 г., а днес е разделен на „Овча Купел 1“ и „Овча Купел 2“, с различна строителна история и жилищен фонд. 

Основните пътни артерии в квартала са булевардите „Овча купел“, „Президент Линкълн“, „Монтевидео“ и „Цар Борис III“, както и Околовръстният път, осигуряващи удобен автомобилен достъп както до централните части на София, така и до основните изходи на града.

 

Кварталът се обслужва от метролиния М3 с метростанции „Овча купел“, „Мизия/НБУ“, „Овча купел II“ и “Горна баня”, които осигуряват директна връзка с централните части на града. Кварталът е свързан с останалата част на София и чрез автобусни линии 11, 59, 60, 73, 102, 103, 107, 111, 260, както и трамвайна линия 11, 4 и 5. Развитието на жилищния фонд в района е съпроводено с модернизацията на уличната инфраструктура и подобряване на транспортната свързаност.

В района съжителстват както по-старо панелно и ЕПК строителство, така и нови жилищни проекти с модерна архитектура. Наличието на ново строителство в близост до метро станция, както и добрата транспортна свързаност, допринасят за засилен интерес към имоти в квартала, както за собствено ползване, така и с цел дългосрочни инвестиции.

 

Овча купел разполага с добре развита градска среда, включваща детски градини, училища, здравни заведения и търговски обекти. Сред учебните институции са 149 СУ „Иван Хаджийски“, както и Нов български университет. На територията на квартала функционират и няколко детски градини. Медицинските услуги в района се осигуряват от МБАЛ „Доверие“, Медицински център „Про Вита”, Болница за рехабилитация „Сердика", както и множество аптеки и специализирани кабинети, разположени по основните булеварди. В квартала се намират и няколко от големите търговски вериги, както и множество квартални магазини и заведения.

Жителите на квартала имат достъп до зелени пространства като парк „Овча купел“, а близостта до планина Витоша и Западен парк предоставя допълнителни възможности за отдих и спорт. Благодарение на комбинацията от достъпни цени, транспортна достъпност и активно строителство, кварталът се утвърждава като зона с висок потенциал за развитие. 

 

Независимо дали търсите уютно студио, просторен апартамент или къща, старо или ново строителство, обзаведени или необзаведени, обявите ни включват разнообразни имоти с функционално разпределение, които отговарят на различни бюджети и предпочитания. 

Нашите брокери недвижими имоти, специализирали в процеса на избор, договаряне и  осъществяване на сделки с имоти, ще ви съпътстват през целия процес - сравнение на оферти, провеждане на огледи и преговори, запознаване и изготвяне на юридическа документация за покупка на мечтания от вас дом.
 
Тук може да се запознаете и с местоположението на офисите на АДРЕС в София.