0888 11 22 00
Най-добрият сайт на агенция
за имоти според потребителите

Тристаен апартамент, продажба, София, кв. Овча купел 2

Код на имота: 686465

Тристаен апартамент, продажба, София

Тристаен апартамент, София, Овча купел 2, 686465, Снимка 1
Тристаен апартамент, София, Овча купел 2, 686465, Снимка 2
Тристаен апартамент, София, Овча купел 2, 686465, Снимка 3
Само от Адрес
Новo
София, Овча купел 2
136 кв.м.
232 500
Тристаен апартамент
Купи само за /мес.
г.
9 преглеждания
1710 €/кв.м.

Описание

Площ: 136 кв.м.

Тип Имот: Тристаен апартамент

Етаж: 2

Ниво на обзавеждане: Шпакловка и замазка

Отопление: Друго

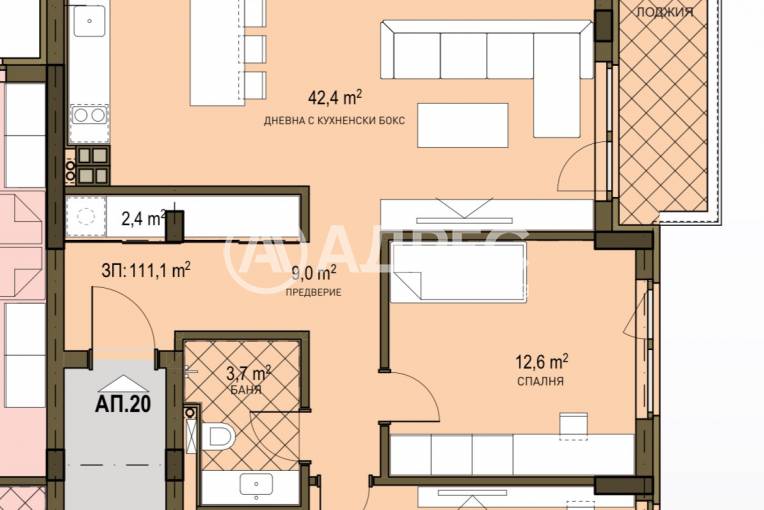
НАЙ-НИСКА ЦЕНА НА КВ.М. ЗА ОВЧА КУПЕЛ! Тристаен ап. 136кв.м., със следното разпределение - предверие, хол с кухненски бокс и трапезария, две спални, две бани с тоалетна, мокро помещение и тераса.

Сграда на 6 етажа. Ниското строителство гарантира достъп на естествена светлина до всеки апартамент, като едновременно с това се откриват страхотни гледки към Витоша. Висок клас на строителство и довършителни материали, асансьор, блиндирани входни врати и висок клас дограма.

Сградата се намира на комуникативно място с бърз достъп до бул. " Президент Линкълн " и на 7 мин пешеходно разстояние от метростанци " Овча купел 2 ". В близост има детска градина, училище, болница и магазини.

- Различни схеми на плащане, включително и 20% на 80% - Локация - в близост до метростанция - Нисък процент общи части

Обади се СЕГА и цитирай този код 686465.

Други апартаменти в сградата

Купувачите вече разглеждат този имот.

Локацията е приблизителна

Други имоти в тази локация

Транспорт

Проверете маршрут

Изпратете запитване

Веселина Зоева

Веселина Зоева

Консултант

Контакти

Форма за запитване

Подобни имоти

Пиши ни ново
Заяви оглед

За квартал Овча купел, София

Квартал Овча Купел е разположен в югозападната част на София и е сред най-големите жилищни райони на столицата. Застрояването му започва още през 1914 г., а днес е разделен на „Овча Купел 1“ и „Овча Купел 2“, с различна строителна история и жилищен фонд. 

Основните пътни артерии в квартала са булевардите „Овча купел“, „Президент Линкълн“, „Монтевидео“ и „Цар Борис III“, както и Околовръстният път, осигуряващи удобен автомобилен достъп както до централните части на София, така и до основните изходи на града.

 

Кварталът се обслужва от метролиния М3 с метростанции „Овча купел“, „Мизия/НБУ“, „Овча купел II“ и “Горна баня”, които осигуряват директна връзка с централните части на града. Кварталът е свързан с останалата част на София и чрез автобусни линии 11, 59, 60, 73, 102, 103, 107, 111, 260, както и трамвайна линия 11, 4 и 5. Развитието на жилищния фонд в района е съпроводено с модернизацията на уличната инфраструктура и подобряване на транспортната свързаност.

В района съжителстват както по-старо панелно и ЕПК строителство, така и нови жилищни проекти с модерна архитектура. Наличието на ново строителство в близост до метро станция, както и добрата транспортна свързаност, допринасят за засилен интерес към имоти в квартала, както за собствено ползване, така и с цел дългосрочни инвестиции.

 

Овча купел разполага с добре развита градска среда, включваща детски градини, училища, здравни заведения и търговски обекти. Сред учебните институции са 149 СУ „Иван Хаджийски“, както и Нов български университет. На територията на квартала функционират и няколко детски градини. Медицинските услуги в района се осигуряват от МБАЛ „Доверие“, Медицински център „Про Вита”, Болница за рехабилитация „Сердика", както и множество аптеки и специализирани кабинети, разположени по основните булеварди. В квартала се намират и няколко от големите търговски вериги, както и множество квартални магазини и заведения.

Жителите на квартала имат достъп до зелени пространства като парк „Овча купел“, а близостта до планина Витоша и Западен парк предоставя допълнителни възможности за отдих и спорт. Благодарение на комбинацията от достъпни цени, транспортна достъпност и активно строителство, кварталът се утвърждава като зона с висок потенциал за развитие. 

 

Независимо дали търсите уютно студио, просторен апартамент или къща, старо или ново строителство, обзаведени или необзаведени, обявите ни включват разнообразни имоти с функционално разпределение, които отговарят на различни бюджети и предпочитания. 

Нашите брокери недвижими имоти, специализирали в процеса на избор, договаряне и  осъществяване на сделки с имоти, ще ви съпътстват през целия процес - сравнение на оферти, провеждане на огледи и преговори, запознаване и изготвяне на юридическа документация за покупка на мечтания от вас дом.
 
Тук може да се запознаете и с местоположението на офисите на АДРЕС в София.