0888 11 22 00
Най-добрият сайт на агенция
за имоти според потребителите

Тристаен апартамент, продажба, София, кв. Овча купел

Код на имота: 683593

Тристаен апартамент, продажба, София

Тристаен апартамент, София, Овча купел, 683593, Снимка 1
Овча купел -Павлово 2 - 7 свободни Вижте всички свободни апартаменти в сградата
София, Овча купел
102 кв.м.
249 312
Тристаен апартамент
Купи само за /мес.
г.
132 преглеждания
2444 €/кв.м.

Описание

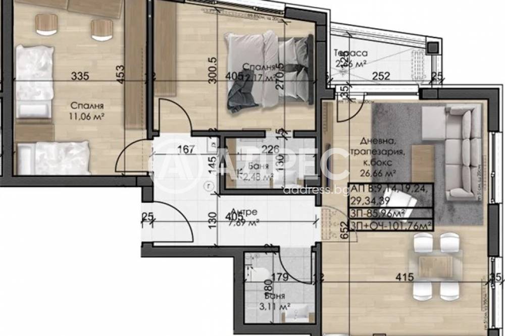
Площ: 102 кв.м.

Тип Имот: Тристаен апартамент

Етаж: 5

Ниво на обзавеждане: Шпакловка и замазка

Отопление: Газ

Апартамента се намира на ет.5  с изложение югоизток/югозапад със застр.площ от 86.кв.м 101.76 кв.м с общи части- среден вътрешен с южно изложение. Състои се от антре 7.400 кв.м, дневна с кухненски бокс 26.66кв.м с тераса пред нея -2.66кв.м, 2 бани с тоалетни над 3кв.м, две непреходни спални 12.17кв.м и 11кв.м 12 кв.м . Посочениете квадратури са чистата светла площ на помещенията. Има апартаменти  със същото разпределение и на горните етажи,като цената е според етажа. Има свободни апартаменти с такова разпределение и на по високи етажи. Отоплението предвидено за всеки 1 ап е с изводи за индивидуални  газови котлета и изградени трасета за климатици сплит система във всяка стая и изводи за главния климатик на терасата. В градата има още много варианти на 2стайни и 3 стайни апартаменти, като съществува и вариант за обединение на апартаменти.Сградата е с акт 14 от миналата година. Акт 16 се предвижда преди края на 2026г.

Качествена луксозна сграда с окачена фасада и 2 типа отопление - изводи за индивидуалнни газови котлета  и изградени трасета за климатици сплит система с изводи във всяко помещение . Сградата се състои от 3 входа с по 2 асаньора във всеки вход, просторни фоайета направени с мрамор,стълбище -мрамор и ковано желязо и с подземно ниво и топла връзка

Сградата се намира в близост до Цар Борис и Павлово ,но не до булеварда.Тиха и комуникативна локация

ЦЕНА*** ЛОКАЦИЯ *** НАВРЕМЕННО ПРЕДАВАНЕ НА СГРАДАТА С АКТ 16

Обади се СЕГА и цитирай този код 683593.


Оферта от партньор на Адрес

Други апартаменти в сградата

Купувачите вече разглеждат този имот.

Локацията е приблизителна

Други имоти в тази локация

Транспорт

Проверете маршрут

Изпратете запитване

Румяна Василева

Румяна Василева

Консултант

Контакти

Форма за запитване

Подобни имоти

Пиши ни ново
Заяви оглед

За квартал Овча купел, София

Квартал Овча Купел е разположен в югозападната част на София и е сред най-големите жилищни райони на столицата. Застрояването му започва още през 1914 г., а днес е разделен на „Овча Купел 1“ и „Овча Купел 2“, с различна строителна история и жилищен фонд. 

Основните пътни артерии в квартала са булевардите „Овча купел“, „Президент Линкълн“, „Монтевидео“ и „Цар Борис III“, както и Околовръстният път, осигуряващи удобен автомобилен достъп както до централните части на София, така и до основните изходи на града.

 

Кварталът се обслужва от метролиния М3 с метростанции „Овча купел“, „Мизия/НБУ“, „Овча купел II“ и “Горна баня”, които осигуряват директна връзка с централните части на града. Кварталът е свързан с останалата част на София и чрез автобусни линии 11, 59, 60, 73, 102, 103, 107, 111, 260, както и трамвайна линия 11, 4 и 5. Развитието на жилищния фонд в района е съпроводено с модернизацията на уличната инфраструктура и подобряване на транспортната свързаност.

В района съжителстват както по-старо панелно и ЕПК строителство, така и нови жилищни проекти с модерна архитектура. Наличието на ново строителство в близост до метро станция, както и добрата транспортна свързаност, допринасят за засилен интерес към имоти в квартала, както за собствено ползване, така и с цел дългосрочни инвестиции.

 

Овча купел разполага с добре развита градска среда, включваща детски градини, училища, здравни заведения и търговски обекти. Сред учебните институции са 149 СУ „Иван Хаджийски“, както и Нов български университет. На територията на квартала функционират и няколко детски градини. Медицинските услуги в района се осигуряват от МБАЛ „Доверие“, Медицински център „Про Вита”, Болница за рехабилитация „Сердика", както и множество аптеки и специализирани кабинети, разположени по основните булеварди. В квартала се намират и няколко от големите търговски вериги, както и множество квартални магазини и заведения.

Жителите на квартала имат достъп до зелени пространства като парк „Овча купел“, а близостта до планина Витоша и Западен парк предоставя допълнителни възможности за отдих и спорт. Благодарение на комбинацията от достъпни цени, транспортна достъпност и активно строителство, кварталът се утвърждава като зона с висок потенциал за развитие. 

 

Независимо дали търсите уютно студио, просторен апартамент или къща, старо или ново строителство, обзаведени или необзаведени, обявите ни включват разнообразни имоти с функционално разпределение, които отговарят на различни бюджети и предпочитания. 

Нашите брокери недвижими имоти, специализирали в процеса на избор, договаряне и  осъществяване на сделки с имоти, ще ви съпътстват през целия процес - сравнение на оферти, провеждане на огледи и преговори, запознаване и изготвяне на юридическа документация за покупка на мечтания от вас дом.
 
Тук може да се запознаете и с местоположението на офисите на АДРЕС в София.