0888 11 22 00
Най-добрият сайт на агенция
за имоти според потребителите

Тристаен апартамент, продажба, София, кв. Симеоново

Код на имота: 633431
XXXXX, XXXXXXXXXX
113 кв.м.
XXX
Тристаен апартамент
609 преглеждания
X €/кв.м.

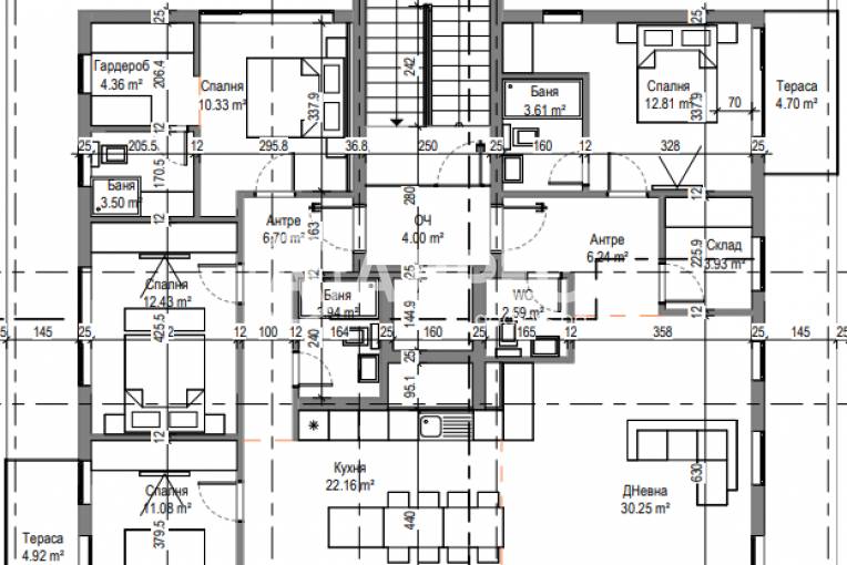
Описание

Площ: 113 кв.м.

Тип Имот: Тристаен апартамент

Етаж: Партер

Ниво на обзавеждане: Шпакловка и замазка

Отопление: Друго

Партерен тристаен апарамент в район Детски град. Състои се от голяма 33 кв.м. дневна, две спални, всяка, от които е със собствена баня, санитарно помещение и склад. Изложение юг, изток и запад. Към апартамента е включен прекрасен двор с площ от 176кв.м. Възможност за закупуване на паркомясто от 20 000 EUR.

Сграда с АКТ 14, до края на 2025г се очаква АКТ 16! Проекта се състои от 2 идентични триетажни сгради, от по 5 апартамента. Изпълнен с висок клас материали от доказан инвеститор.

Невероятно тиха и приятна локация. Нови малки сгради и къщи в съседство. В близост до американското училище. Перфектна локация за тих семеен живот.

Проекта ще бъде изграден в местността Детски град.

Обади се СЕГА и цитирай този код 633431.

Купувачите вече разглеждат този имот.

Локацията е приблизителна

Други имоти в тази локация

Транспорт

Проверете маршрут

Изпратете запитване

Веселина Зоева

Веселина Зоева

Консултант

Контакти

Подобни имоти

Пиши ни ново
Заяви оглед