0888 11 22 00
Най-добрият сайт на агенция
за имоти според потребителите

Тристаен апартамент, продажба, София, кв. Симеоново

Код на имота: 650635
XXXXX, XXXXXXXXXX
151 кв.м.
XXX
Тристаен апартамент
336 преглеждания
X €/кв.м.

Описание

Площ: 151 кв.м.

Тип Имот: Тристаен апартамент

Етаж: Партер

Ниво на обзавеждане: Частично обзаведен

Отопление: Газ

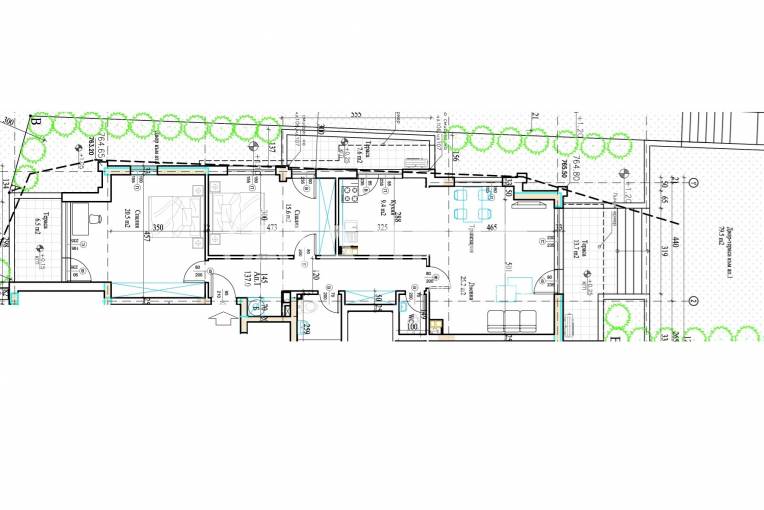
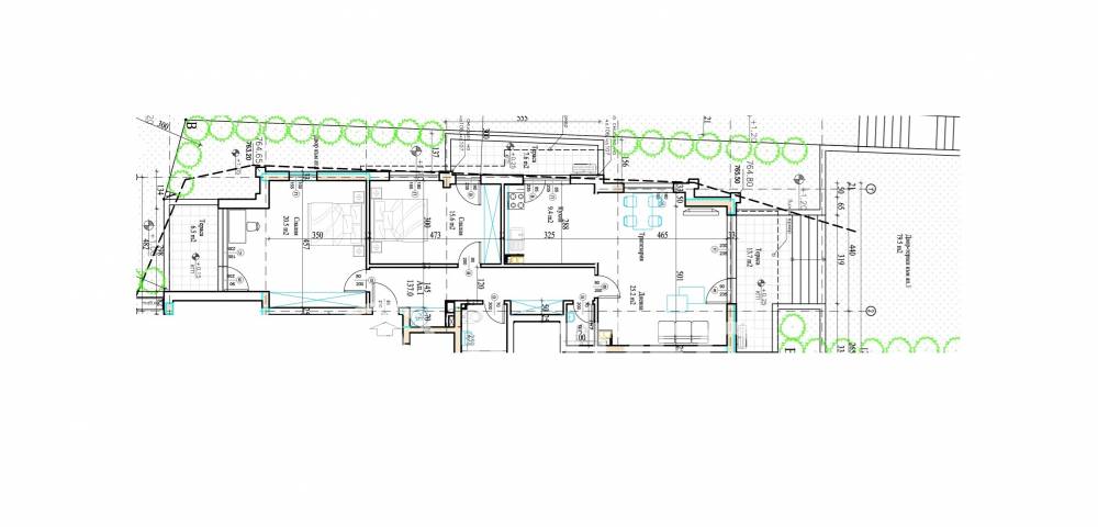
Представяме Ви просторно тристайно жилище, ЗАВЪРШЕНО ДО КЛЮЧ по дизайнерски проект, със следното разпределение: Входно антре, просторна всекидневна с кухненски бокс и трапезария, две големи спални, баня с тоалетна, отделна тоалетна, мокро помещение, три тераси и самостоятелен прилежащ озеленен двор, с площ 79,50 кв.м., отделно от описаната площ! 150,50 кв.м. + 79,50 кв.м.!  За Ваше улеснение прилагаме схема с разпределението!  Жилището е завършено с най-висок клас материали и изцяло поръчкови мебели, на обща вложена стойност над 90 000 EUR, за което може да се представи подробна разбивка! Предлага се частично обзаведено, с възможност да се обзаведе напълно по проекта от снимките! Изложения: Всекидневна - ЮГ и Изток, Детска спалня - Изток, Родителска спалня - Изток и Север! Прилежащо мазе с площ от 5 кв.м. Възможност за купуване на подземно паркомясто!

Чисто нова сграда с ЛУКСОЗНИ ОБЩИ ЧАСТИ, създаващи усещане за УЮТ и СТИЛ на прибиране към дома! - Италиански подови настилки и мазилки в общите части; - 7-камерна PVC дограма REHAU с троен стъклопакет; - 'Сика' швейцарска хидроизолация в цялата сграда /сутерен, тераси, покрив/; - Фасада с материали на 'Капарол' - 10 см топлоизолация, самопочистваща се силикон -силикатна мазилка с карбон; - Дизайнерски асансьор 'Орона'.

Отлична локация в квартала! - Тиха и спокойна улица, с бърз достъп до бул. Симеоновско шосе, автобусни спирки, детски градини и училища!

ЛУКСОЗНО ЗАВЪРШЕН !!! ПРОСТОРЕН !!! ЛОКАЦИЯ !!!

Обади се СЕГА и цитирай този код 650635.


Оферта от партньор на Адрес

Купувачите вече разглеждат този имот.

Локацията е приблизителна

Други имоти в тази локация

Транспорт

Проверете маршрут

Изпратете запитване

Жан Викторов

Жан Викторов

Консултант

Контакти

Подобни имоти

Пиши ни ново
Заяви оглед