0888 11 22 00
Най-добрият сайт на агенция
за имоти според потребителите

Двустаен апартамент, продажба, София, кв. Славия

Код на имота: 652848
XXXXX, XXXXXXXXXX
78 кв.м.
XXX
Двустаен апартамент
406 преглеждания
X €/кв.м.

Описание

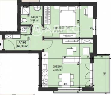
Площ: 78 кв.м.

Тип Имот: Двустаен апартамент

Етаж: 2

Ниво на обзавеждане: Шпакловка и замазка

Отопление: Друго

Голям двустаен апартамент със застроена площ 66 кв.м. Разпределение: антре, дневна с кухня, спалня, баня с тоалетна, тераса. Изложение Югоизток Инвеститор с много завършени и въведени в експлоатация сгради

Малка, елегантна тухлена сграда с 13 апартамента. Етап на строителството - Акт 14   

Бул. Овча купел - на 2 мин. от метростанция Овча купел

Локация Среден етаж Изложение

Обади се СЕГА и цитирай този код 652848.

6 купувача разглеждат този имот.

Локацията е приблизителна

Други имоти в тази локация

Транспорт

Проверете маршрут

Изпратете запитване

Димитър Алексиев

Димитър Алексиев

Консултант

Контакти

Подобни имоти

Пиши ни ново
Заяви оглед