0888 11 22 00
Най-добрият сайт на агенция
за имоти според потребителите

Тристаен апартамент, продажба, Стара Загора, кв. Център

Код на имота: 680818

Тристаен апартамент, продажба, Стара Загора

Тристаен апартамент, Стара Загора, Център, 680818, Снимка 1
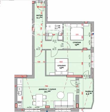
Скица
Стара Загора, Център
118 кв.м.
244 000
Тристаен апартамент
Купи само за /мес.
г.
130 преглеждания
2068 €/кв.м.

Описание

Площ: 118 кв.м.

Тип Имот: Тристаен апартамент

Етаж: 3

Ниво на обзавеждане: Шпакловка и замазка

Отопление: Газ

Нов Ексклузивен Проект в град Стара Загора   Представяме Ви нова жилищна сграда, разположена в северната част на град Стара Загора – в непосредствена близост до Математическата гимназия. Сградата е с модерна визия и отлично местоположение, осигуряващо както тишина и спокойствие, така и бърз достъп до централните части на града. Състои се от шест етажа и включва общо 12 апартамента, гаражи и обособени паркоместа за удобство на живущите. На Вашето внимание предлагаме тристаен апартамент с обща площ от 118 кв.м, който е функционално разпределен по следния начин: входно антре, просторна всекидневна с кухненски бокс, две самостоятелни спални, баня с тоалетна, балкон. Жилището предлага комфорт, съвременно разпределение и отлична локация – перфектен избор за семейно жилище или инвестиция. Обади се СЕГА  и цитирай този код: 680818

Нова жилищна сграда със съвременна и модерна визия, проектирана с внимание към детайла и удобството на бъдещите обитатели. Предлага комфортна среда за живеене, като едно от основните ѝ предимства е ограниченият брой апартаменти – само 12 на брой, което гарантира спокойствие, уединение и по-високо ниво на комфорт. Сградата разполага с гаражи и обособени паркоместа, осигуряващи удобство в натовареното градско ежедневие.

Сградата е разположена в един от най-предпочитаните и спокойни райони на град Стара Загора – в подножието на парк "Аязмото", предлагащ зеленина, чист въздух и възможности за отдих и разходки. Локацията съчетава природна среда с отлична градска инфраструктура. В непосредствена близост се намира Природо-математическата гимназия, както и множество удобства като магазини, спирки на градски транспорт, детски градини и училища. Перфектен избор за семейства и хора, търсещи комфорт и тишина в градска среда.

 Отлична локация до парк и училища  Ограничен брой жилища  Сигурност и спокойствие  Възможност СЕГА да изберете етаж и предпочитано изложение

Обади се СЕГА и цитирай този код 680818.


Оферта от партньор на Адрес

Купувачите вече разглеждат този имот.

Локацията е приблизителна

Други имоти в тази локация

Транспорт

Проверете маршрут

Изпратете запитване

Теодора Терзиева

Теодора Терзиева

Консултант

Контакти

Форма за запитване

Подобни имоти

Заяви оглед