0888 11 22 00
Най-добрият сайт на агенция
за имоти според потребителите

Двустаен апартамент, продажба, Варна, кв. Център

Код на имота: 677207

Двустаен апартамент, продажба, Варна

Двустаен апартамент, Варна, Център, 677207, Снимка 1
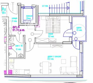
Скица
Новo
Варна, Център
73 кв.м.
165 000
Двустаен апартамент
Купи само за /мес.
г.
40 преглеждания
2266 €/кв.м.

Описание

Площ: 73 кв.м.

Тип Имот: Двустаен апартамент

Етаж: 1

Ниво на обзавеждане: Шпакловка и замазка

Отопление: Друго

Двустаен апартамент, който се състои от дневна, спалня, коридор, тераса и санитарно помещение.  Очаква се разрешение за строеж до края на 2025г. 

Сградата ще бъде седеметажна, с асансьор. Изпълнявава се с висококачествени матерериали, отлично изпълнение на визия и общи части. Състои се от общо 25 апартамента, външни и подземни паркоместа. 

В района на Централна поща В близост до Градска болница Наоколо има училища и детски градини.

Предимствата на проекта са:  - централна локация - малка сграда само от 25 апартамента - отлично строителство и доказан строител - налични за продажба са  подземни паркоместа.

Обади се СЕГА и цитирай този код 677207.

Купувачите вече разглеждат този имот.

Локацията е приблизителна

Други имоти в тази локация

Транспорт

Проверете маршрут

Изпратете запитване

Любомира Бояджиева

Любомира Бояджиева

Консултант

Контакти

Форма за запитване

Подобни имоти

Пиши ни ново
Заяви оглед