0888 11 22 00
Най-добрият сайт на агенция
за имоти според потребителите

Тристаен апартамент, продажба, Варна, кв. к.к. Чайка

Код на имота: 684689

Тристаен апартамент, продажба, Варна

Тристаен апартамент, Варна, к.к. Чайка, 684689, Снимка 1
Тристаен апартамент, Варна, к.к. Чайка, 684689, Снимка 2
Тристаен апартамент, Варна, к.к. Чайка, 684689, Снимка 3
Тристаен апартамент, Варна, к.к. Чайка, 684689, Снимка 4
Скица
Варна, к.к. Чайка
80 кв.м.
136 000
Тристаен апартамент
Купи само за /мес.
г.
147 преглеждания
1700 €/кв.м.

Описание

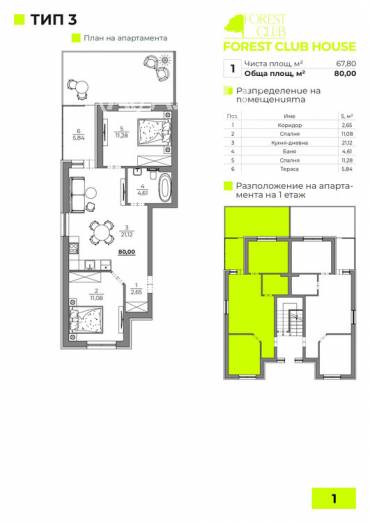
Площ: 80 кв.м.

Тип Имот: Тристаен апартамент

Етаж: 1

Ниво на обзавеждане: Шпакловка и замазка

Отопление: Друго

Тристаен апартамент в строеж. Жилището е със следното разпределение: просторна дневна с кухненски бокс, две спални, тераса, баня с тоалет и входно антре. Степента на завършеност ще е по БДС, като има възможност и за завършване до ключ. Предимство на жилището е, че е един от четирите апартамента в малка двуетажна къща със собствен двор.

Комплексът се състои от двуетажни вили със собствена инфраструктура. Къщите се намират до природен парк, на 15 минути пеша от плажа. Комплексът предлага на своите жители, просторни вътрешни дворове и тераси с невероятна гледка към гората.

Комплекса се намира на 15 мин. с кола от гр.Варна на територията на парк "Златни пясъци"

- Паркинг. - Супермаркет. - Автомивка. - Денонощно видеонаблюдение. - Кафене и детска площадка. - Зони за разходка, отдих и релакс.

Обади се СЕГА и цитирай този код 684689.

Купувачите вече разглеждат този имот.

Локацията е приблизителна

Други имоти в тази локация

Транспорт

Проверете маршрут

Изпратете запитване

Кристиян Месчиян

Кристиян Месчиян

Консултант

Контакти

Форма за запитване

Подобни имоти

Пиши ни ново
Заяви оглед