0888 11 22 00
Най-добрият сайт на агенция
за имоти според потребителите

Двустаен апартамент, продажба, Варна, кв. Колхозен пазар

Код на имота: 688334

Двустаен апартамент, продажба, Варна

Двустаен апартамент, Варна, Колхозен пазар, 688334, Снимка 1
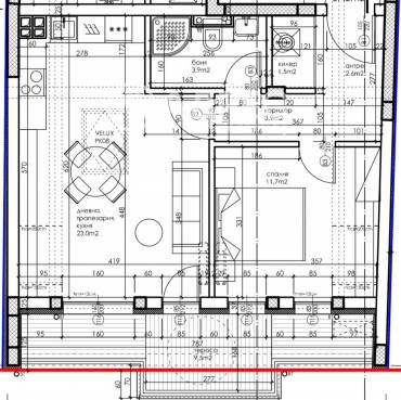
Скица
Само от Адрес
Новo
Варна, Колхозен пазар
84 кв.м.
125 000
Двустаен апартамент
Купи само за /мес.
г.
50 преглеждания
1488 €/кв.м.

Описание

Площ: 84 кв.м.

Тип Имот: Двустаен апартамент

Етаж: 5

Ниво на обзавеждане: Шпакловка и замазка

Отопление: Друго

Двустаен тухлен апартамент в новострояща се сграда, разположена в района на Колхозен пазар. Жилището се състои от: просторен дневен тракт с кухненска част 23 кв.м, спалня 12 кв.м, баня с тоалет, коридор и тераса, осигуряваща допълнителен комфорт. Изложение Ю/З. Има възможност за закупуване на паркомясто – както на партерно ниво, така и подземно, което осигурява удобство и сигурност за бъдещите собственици.

 Сградата се изгражда от доказан строител, гарантиращ качество на изпълнение. Контролиран достъп.

На пешеходно разстояние до центъра на града, както и в близост до Колхозен пазар, Гранд мол Варна, бул. Васил Левски.

Апартаментът е подходящ както за лично ползване, така и за инвестиция с цел отдаване под наем.

Обади се СЕГА и цитирай този код 688334.

Купувачите вече разглеждат този имот.

Локацията е приблизителна

Други имоти в тази локация

Транспорт

Проверете маршрут

Изпратете запитване

Валерия Атанасова

Валерия Атанасова

Консултант

Контакти

Форма за запитване

Подобни имоти

Пиши ни ново
Заяви оглед