0888 11 22 00
Най-добрият сайт на агенция
за имоти според потребителите

Парцел/Терен, продажба, Варна, кв. м-ст Зеленика

Код на имота: 686997

Парцел/Терен, продажба, Варна

Парцел/Терен, Варна, м-ст Зеленика, 686997, Снимка 1
Парцел/Терен, Варна, м-ст Зеленика, 686997, Снимка 2
Парцел/Терен, Варна, м-ст Зеленика, 686997, Снимка 3
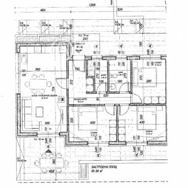
Скица
Намалена цена
Само от Адрес
Новo
Варна, м-ст Зеленика
1066 кв.м.
125 000
Парцел/Терен
Купи само за /мес.
г.
43 преглеждания
117 €/кв.м.

Описание

Площ: 1066 кв.м.

Тип Имот: Парцел/Терен

Парцел в местност  Зеленика, район Аспарухово, кв. Галата. Площта  е  1066 кв.м. и има разрешение за строеж  на еднофамилна жилищна сграда с разгъната площ от 99,98 кв.м, с действащи партиди за ток и вода. От имота се разкрива гледка към града и околността. Локацията осигурява спокойствие и близост до природата, като същевременно е в удобен достъп до основни пътища и инфраструктура. Характеристиките  на имота го прави идеален за изграждане  на комфортен дом.

Обади се СЕГА и цитирай този код 686997.

Купувачите вече разглеждат този имот.

Локацията е приблизителна

Други имоти в тази локация

Транспорт

Проверете маршрут

Изпратете запитване

Райна Стойчева

Райна Стойчева

Консултант

Контакти

Форма за запитване

Подобни имоти

Пиши ни ново
Заяви оглед