0888 11 22 00
Най-добрият сайт на агенция
за имоти според потребителите

Двустаен апартамент, продажба, Варна, кв. Окръжна болница

Код на имота: 683979

Двустаен апартамент, продажба, Варна

Двустаен апартамент, Варна, Окръжна болница, 683979, Снимка 1
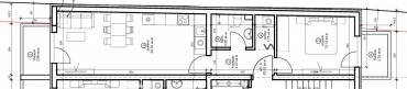
Скица
Проект Сграда Окръжна болница - 5 свободни Вижте всички свободни апартаменти в сградата
Варна, Окръжна болница
82 кв.м.
212 000
Двустаен апартамент
Купи само за /мес.
г.
142 преглеждания
2574 €/кв.м.

Описание

Площ: 82 кв.м.

Тип Имот: Двустаен апартамент

Етаж: 4

Ниво на обзавеждане: Шпакловка и замазка

Отопление: Друго

Нова жилищна сграда в центъра на гр. Варна – Окръжна болница, проектирана с фокус върху функционални разпределения, модерна визия и качество на изпълнение. Проектът е с надземно РЗП 362 кв.м и съчетава най-търсеното на пазара: централна и комуникативна локация, но в същото време спокойна среда за живеене. Апартаментите ще се предават по БДС, което дава свобода на бъдещите собственици да завършат интериора според вкус, бюджет и стил – подходящо както за лично ползване, така и за инвестиция/отдаване под наем.

Етажност: 6 надземни етажа + 1 подземно ниво (паркинг). Паркиране: подземни паркоместа на ниво -1 и опция за дворно паркомясто.  Функционални жилища: разнообразие от разпределения, с добре организирани дневни зони и логични „мокри“ помещения. Завършени общи части с практични и издръжливи материали: Фасада: топлоизолация и минерални мазилки  Дограма: PVC с троен стъклопакет и енерджи стъкло Подготвена климатизация: положени тръбни пътища за климатици

Сградата се намира в района на Окръжна болница, Стоматологичен факултет, детски градини и училища – район с утвърдена инфраструктура и постоянен интерес. Локацията осигурява бърз достъп до ключови градски точки, търговски обекти и удобства, като едновременно с това позиционирането е на тихо място, което е реално предимство за ежедневен комфорт.

Център + тиха улица – отлична комбинация за живеене и инвестиция Без такса поддръжка – по-нисък месечен разход за собствениците Подземен паркинг + опция за дворно паркомясто  Практични разпределения на помещенията. Тераси и открити пространства, които реално се ползват – плюс към комфорта и стойността на имота. Подходящо за инвестиция: локация и тип имоти с устойчиво търсене (живеене/наем), особено при налично паркиране.

Обади се СЕГА и цитирай този код 683979.

Други апартаменти в сградата

Купувачите вече разглеждат този имот.

Локацията е приблизителна

Други имоти в тази локация

Транспорт

Проверете маршрут

Изпратете запитване

Любомира Бояджиева

Любомира Бояджиева

Консултант

Контакти

Форма за запитване

Подобни имоти

Пиши ни ново
Заяви оглед