0888 11 22 00
Най-добрият сайт на агенция
за имоти според потребителите

Тристаен апартамент, продажба, Варна, кв. Погребите

Код на имота: 668188

Тристаен апартамент, продажба, Варна

Тристаен апартамент, Варна, Погребите, 668188, Снимка 1
Тристаен апартамент, Варна, Погребите, 668188, Снимка 2
Тристаен апартамент, Варна, Погребите, 668188, Снимка 3
Варна, Погребите
110 кв.м.
185 500
Тристаен апартамент
Купи само за /мес.
г.
279 преглеждания
1686 €/кв.м.

Описание

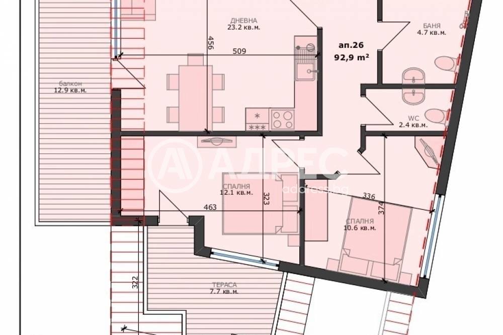
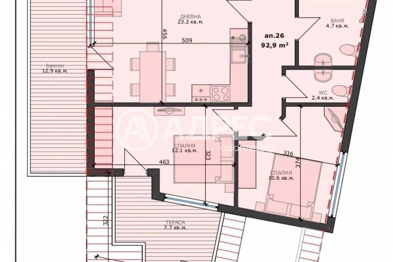
Площ: 110 кв.м.

Тип Имот: Тристаен апартамент

Етаж: 5

Ниво на обзавеждане: Шпакловка и замазка

Отопление: Друго

.  Представяме на вашето внимание просторен и функционално разпределен апартамент с площ от 110 кв.м, разположен в новострояща се модерна сграда. Основни характеристики: Обща площ: 110 кв.м Просторна дневна зона, подходяща за обособяване на холова част, трапезария и кухненски бокс – светла и уютна, с директен достъп до голяма 13м2 тераса Две самостоятелни спални, всяка с удобни размери и възможност за пълноценно обзавеждане Баня с тоалет и тоалет отделно Две големи тераси, предоставящи възможност за отдих на открито, с достъп от дневната и едната спалня Жилището е проектирано с внимание към комфорта и функционалността, като предлага отлично разпределение, без загуба на пространство. Просторът, естествената светлина и двете санитарни помещения го правят изключително подходящ за семейства. Имотът се издава по БДС – на шпакловка и замазка, с PVC дограма, входна блиндирана врата и напълно изградени инсталации, което позволява на новия собственик да го довърши по свой вкус.

Новострояща се жилищна сграда, разположена в комуникативен и предпочитан район на града, съчетаващ удобство, спокойствие и лесен достъп до основни пътни артерии, магазини, училища, болница и обществен транспорт. Проектът е дело на утвърдена строителна компания с дългогодишен опит и множество успешно реализирани сгради, отличаващи се с високо качество на изпълнение и внимание към детайла.

Район Погреби е район в централната част на града на пешеходно разстояние от Катедралата и пешеходната зона. Район с изградена инфраструктура и удобствата на градския живот. 

Локация, качествено стоителство, утвърден строител с множество изградени сгради, изключително атрактивна цена. 

Обади се СЕГА и цитирай този код 668188.

Други апартаменти в сградата

Купувачите вече разглеждат този имот.

Локацията е приблизителна

Други имоти в тази локация

Транспорт

Проверете маршрут

Изпратете запитване

Жерар Левонян

Жерар Левонян

Консултант

Контакти

Форма за запитване

Подобни имоти

Пиши ни ново
Заяви оглед

За жилищен район Погребите във Варна

Погребите е жилищен район в централната част на град Варна, разположен в близост до основните градски артерии и историческия център на морския град. Зоната се намира между ул. „Хан Пресиян“, бул. „Христо Ботев“ и бул. „Девня“. Тази непосредствена близост до центъра го прави удобна и желана дестинация за живеене с лесен достъп до важни градски точки и услуги. Погребите граничи с квартали като Колхозен пазар, Христо Ботев и промишлена зона на юг, което допълва разнообразието на околната среда.

 

Застрояването в Погребите е разнообразно – доминират нискоетажни тухлени сгради, малки блокове, но през последните години в квартала се появяват и нови жилищни проекти и модерни апартаменти, които придават съвременен облик на района. Жилищният фонд е с добро съотношение между старо и ново строителство, което привлича както млади семейства, така и жители, търсещи спокойна, но градска среда. 

 

Транспортната свързаност е добра – районът се обслужва от множество автобусни линии на градския транспорт, които свързват Погребите с центъра, жп гарата и други райони на Варна. 

 

В рамките на жилищната зона и в близост до нея действат детски градини и училища, включително детски градини като „1 ЦДГ“ „Светулка“, както и основни училища като ОУ „Константин Арнауджиев“. 
Медицинското обслужване е изградено от медицински центрове, други здравни заведения и частни клиники, които обслужват населението както за ежедневни нужди, така и за по-специализирани услуги.

 

Погребите разполага с магазини, супермаркети, пазари, аптеки и разнообразни услуги в близост, а също така има и заведения и търговски обекти.  Погребите предлага и зелени пространства и междублокови градини, които допринасят за спокойната и уютна атмосфера на квартала, правейки го подходящ както за семейства, така и за хора, които търсят баланс между градски живот и комфорт.
 

Независимо дали търсите уютно студио, просторен апартамент или къща, старо или ново строителство, обзаведени или необзаведени, обявите ни включват разнообразни имоти с функционално разпределение, които отговарят на различни бюджети и предпочитания. 

 

При нас може да откриете различни типове жилища и бизнес имоти в всички райони и квартали на Варна:

>>  едностайни апартаменти във Варна
>>  двустайни апартаменти във Варна
>>  тристайни апартаменти във Варна
>>  многостайни апартаменти във Варна
>>  къщи във Варна
>>  офиси във Варна
>>  търговски площи във Варна
 

Нашите брокери недвижими имоти, специализирали в процеса на избор, договаряне и  осъществяване на сделки с имоти, ще ви съпътстват през целия процес - сравнение на оферти, провеждане на огледи и преговори, запознаване и изготвяне на юридическа документация за покупка на мечтания от вас дом.
 
Тук може да се запознаете и с местоположението на офисите на АДРЕС във Варна.