0888 11 22 00
Най-добрият сайт на агенция
за имоти според потребителите

Двустаен апартамент, продажба, Варна, кв. Възраждане 4

Код на имота: 644904

Двустаен апартамент, продажба, Варна

Двустаен апартамент, Варна, Възраждане 4, 644904, Снимка 1
Двустаен апартамент, Варна, Възраждане 4, 644904, Снимка 2
Двустаен апартамент, Варна, Възраждане 4, 644904, Снимка 3
Скица
Варна, Възраждане 4
59 кв.м.
82 091
Двустаен апартамент
Купи само за /мес.
г.
441 преглеждания
1391 €/кв.м.

Описание

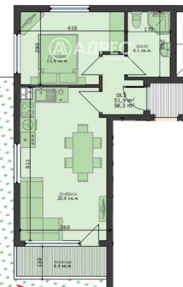
Площ: 59 кв.м.

Тип Имот: Двустаен апартамент

Етаж: Партер

Ниво на обзавеждане: Шпакловка и замазка

Отопление: Друго

Предствяме ви просторен, слънчев и функционален апартамент. Жилището се състои от дневна с кухненска част 21 кв.м., спалня 12 кв.м., баня/тоалет и веранда. С опция за покупка на паркомясто!

Предлагаме на Вашето внимание един от най-новите ни проекти, находящ се в ЖК ВЪЗРАЖДАНЕ IV. Две сгради, всяка от които разполага с полуподземен етаж със складове/ ателиета и 3 жилищни етажа. Сграда А разполага с подземен етаж с гаражи, а за сграда Б има предвидени 17 външни паркоместа.  В момента се завършва проектирането. Очакван старт на обекта в края на лятото на 2025г. 

Изключително комуникативен район. В близост до търговски обекти, автобусни спирки и т.н.

- Простор; - Комуникации; - Цена; - Качество.

Обади се СЕГА и цитирай този код 644904.

Други апартаменти в сградата

Купувачите вече разглеждат този имот.

Локацията е приблизителна

Други имоти в тази локация

Транспорт

Проверете маршрут

Изпратете запитване

Владимир Калчев

Владимир Калчев

Консултант

Контакти

Форма за запитване

Подобни имоти

Пиши ни ново
Заяви оглед

За квартал Възраждане във Варна

Квартал Възраждане е разположен в западната част на Варна и представлява един от утвърдените жилищни райони на града с ясно изразен квартален характер. Районът се развива основно през втората половина на XX век и днес функционира като самостоятелна градска зона с добре изградена инфраструктура и пълноценна обслужваща среда. Възраждане граничи с кварталите Владислав Варненчик, Младост и Западна промишлена зона, което осигурява удобни връзки към различни части на града.


Транспортната достъпност на квартала е добре организирана. Основни пътни артерии като бул. „Трети март“, бул. „Република“ и бул. „Владислав Варненчик“ осигуряват бърз автомобилен достъп до централната част на Варна, автогарата, индустриалните зони и изходите на града. Кварталът се обслужва от множество автобусни линии, сред които №14, 20, 22, 41, 48, 118 и 409, които осигуряват редовни връзки с центъра, жп гара Варна, летището, морските квартали и основните търговски и административни зони.


Жилищната среда във Възраждане е разнообразна и включва панелни и ЕПК сгради, строени основно през 70-те и 80-те години, както и по-нови тухлени кооперации и съвременни жилищни проекти, реализирани през последните години. Застрояването е сравнително плътно, но кварталът разполага с междублокови пространства, детски площадки и озеленени зони, които допринасят за по-добра среда за живеене. Наличието на различни типове имоти позволява избор в широк ценови диапазон, което прави района подходящ както за собствено ползване, така и за инвестиции.


Инфраструктурата на квартала е добре развита и обслужва нуждите на ежедневно обитаване. Във Възраждане функционират детски градини и училища, сред които основни и средни учебни заведения, осигуряващи образование в рамките на квартала. В близост се намират и професионални гимназии и допълнителни образователни центрове, разположени в съседните райони.


Медицинското обслужване е осигурено чрез ДКЦ, медицински центрове, индивидуални лекарски практики, стоматологични кабинети и аптеки, разположени по основните булеварди и жилищни зони. За специализирана болнична помощ жителите разчитат на големите многопрофилни болници във Варна, до които има бърз транспортен достъп.


Търговската и обслужваща инфраструктура е представена от супермаркети, магазини на национални и международни вериги, търговски обекти, заведения, банки и административни услуги. В близост до квартала се намират големи търговски центрове и ритейл паркове, които допълват възможностите за пазаруване и услуги.


Съчетанието от развита транспортна мрежа, пълна градска инфраструктура, разнообразен жилищен фонд и добра достъпност до ключови точки на Варна позиционират квартал Възраждане като стабилен и функционален жилищен район, подходящ за семейства, работещи хора и инвеститори, търсещи практично решение за градско обитаване.
 

Независимо дали търсите уютно студио, просторен апартамент или къща, старо или ново строителство, обзаведени или необзаведени, обявите ни включват разнообразни имоти с функционално разпределение, които отговарят на различни бюджети и предпочитания. 

 

При нас може да откриете различни типове жилища и бизнес имоти в всички райони и квартали на Варна:

>>  едностайни апартаменти във Варна
>>  двустайни апартаменти във Варна
>>  тристайни апартаменти във Варна
>>  многостайни апартаменти във Варна
>>  къщи във Варна
>>  офиси във Варна
>>  търговски площи във Варна
 

Нашите брокери недвижими имоти, специализирали в процеса на избор, договаряне и  осъществяване на сделки с имоти, ще ви съпътстват през целия процес - сравнение на оферти, провеждане на огледи и преговори, запознаване и изготвяне на юридическа документация за покупка на мечтания от вас дом.
 
Тук може да се запознаете и с местоположението на офисите на АДРЕС във Варна.