0888 11 22 00
Най-добрият сайт на агенция
за имоти според потребителите

Тристаен апартамент, продажба, Варна, кв. Възраждане 4

Код на имота: 668587
XXXXX, XXXXXXXXXX
120 кв.м.
XXX
Тристаен апартамент
162 преглеждания
X €/кв.м.

Описание

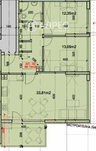
Площ: 120 кв.м.

Тип Имот: Тристаен апартамент

Етаж: 13

Ниво на обзавеждане: Шпакловка и замазка

Отопление: Друго

Тристаен апартамент в новострояща се сграда. Състои се от просторен дневен тракт с тераса, две спални, две санитарни помещения и килер. Въздух и простор от всички апартаменти. Оптимални разпределения и правилни форми на стаите. Отлични изложения. Възможност за покупка на външно или подземно паркомясто. За продажба има разнообразие от двустайни, тристайни и многостайни апартаменти. В продажба са и подземни паркоместа.  Издаване по БДС стандарт: стени - гипсова мазилка, под - циментова замазка, висококачествена ПВЦ дограма. Луксозно изпълнени общи части с подови настилки гранитогрес или гранит, стени - декоративна мазилка.

Модерно проектирана и луксозно изпълнявана сграда.

кв. Възраждане

Предимства:  - модерен комплекс - отлична инфраструктура - фунционално разпределени площи - удобни търговски площи

Обади се СЕГА и цитирай този код 668587.

Други апартаменти в сградата

Купувачите вече разглеждат този имот.

Локацията е приблизителна

Други имоти в тази локация

Транспорт

Проверете маршрут

Подобни имоти

Пиши ни ново
Заяви оглед

За квартал Възраждане във Варна

Квартал Възраждане е разположен в западната част на Варна и представлява един от утвърдените жилищни райони на града с ясно изразен квартален характер. Районът се развива основно през втората половина на XX век и днес функционира като самостоятелна градска зона с добре изградена инфраструктура и пълноценна обслужваща среда. Възраждане граничи с кварталите Владислав Варненчик, Младост и Западна промишлена зона, което осигурява удобни връзки към различни части на града.


Транспортната достъпност на квартала е добре организирана. Основни пътни артерии като бул. „Трети март“, бул. „Република“ и бул. „Владислав Варненчик“ осигуряват бърз автомобилен достъп до централната част на Варна, автогарата, индустриалните зони и изходите на града. Кварталът се обслужва от множество автобусни линии, сред които №14, 20, 22, 41, 48, 118 и 409, които осигуряват редовни връзки с центъра, жп гара Варна, летището, морските квартали и основните търговски и административни зони.


Жилищната среда във Възраждане е разнообразна и включва панелни и ЕПК сгради, строени основно през 70-те и 80-те години, както и по-нови тухлени кооперации и съвременни жилищни проекти, реализирани през последните години. Застрояването е сравнително плътно, но кварталът разполага с междублокови пространства, детски площадки и озеленени зони, които допринасят за по-добра среда за живеене. Наличието на различни типове имоти позволява избор в широк ценови диапазон, което прави района подходящ както за собствено ползване, така и за инвестиции.


Инфраструктурата на квартала е добре развита и обслужва нуждите на ежедневно обитаване. Във Възраждане функционират детски градини и училища, сред които основни и средни учебни заведения, осигуряващи образование в рамките на квартала. В близост се намират и професионални гимназии и допълнителни образователни центрове, разположени в съседните райони.


Медицинското обслужване е осигурено чрез ДКЦ, медицински центрове, индивидуални лекарски практики, стоматологични кабинети и аптеки, разположени по основните булеварди и жилищни зони. За специализирана болнична помощ жителите разчитат на големите многопрофилни болници във Варна, до които има бърз транспортен достъп.


Търговската и обслужваща инфраструктура е представена от супермаркети, магазини на национални и международни вериги, търговски обекти, заведения, банки и административни услуги. В близост до квартала се намират големи търговски центрове и ритейл паркове, които допълват възможностите за пазаруване и услуги.


Съчетанието от развита транспортна мрежа, пълна градска инфраструктура, разнообразен жилищен фонд и добра достъпност до ключови точки на Варна позиционират квартал Възраждане като стабилен и функционален жилищен район, подходящ за семейства, работещи хора и инвеститори, търсещи практично решение за градско обитаване.
 

Независимо дали търсите уютно студио, просторен апартамент или къща, старо или ново строителство, обзаведени или необзаведени, обявите ни включват разнообразни имоти с функционално разпределение, които отговарят на различни бюджети и предпочитания. 

 

При нас може да откриете различни типове жилища и бизнес имоти в всички райони и квартали на Варна:

>>  едностайни апартаменти във Варна
>>  двустайни апартаменти във Варна
>>  тристайни апартаменти във Варна
>>  многостайни апартаменти във Варна
>>  къщи във Варна
>>  офиси във Варна
>>  търговски площи във Варна
 

Нашите брокери недвижими имоти, специализирали в процеса на избор, договаряне и  осъществяване на сделки с имоти, ще ви съпътстват през целия процес - сравнение на оферти, провеждане на огледи и преговори, запознаване и изготвяне на юридическа документация за покупка на мечтания от вас дом.
 
Тук може да се запознаете и с местоположението на офисите на АДРЕС във Варна.