0888 11 22 00
Най-добрият сайт на агенция
за имоти според потребителите

Тристаен апартамент, продажба, Варна, кв. Зимно кино Тракия

Код на имота: 657663

Тристаен апартамент, продажба, Варна

Тристаен апартамент, Варна, Зимно кино Тракия, 657663, Снимка 1
Тристаен апартамент, Варна, Зимно кино Тракия, 657663, Снимка 2
Тристаен апартамент, Варна, Зимно кино Тракия, 657663, Снимка 3
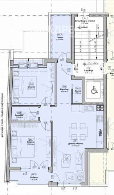
Скица
5+ огледа
Варна, Зимно кино Тракия
107 кв.м.
223 510
Тристаен апартамент
Купи само за /мес.
г.
431 преглеждания
2089 €/кв.м.

Описание

Площ: 107 кв.м.

Тип Имот: Тристаен апартамент

Етаж: 5

Ниво на обзавеждане: Шпакловка и замазка

Отопление: Друго

Модерна жилищна сграда в широк център – Зимно кино Тракия. Представяме Ви тристаен апартамент, който се състои от: голям дневен тракт, две големи спални, коридор, килер, баня с тоалет, тераса и лоджия.

Сградата разполага с двустайни и тристайни апартаменти, подходящи както за живеене, така и за инвестиция. Разпределенията са практични, с максимално използване на пространството и добро естествено осветление.

Близост до училища, детски градини, магазини, аптеки и заведения. На пешеходно разстояние от главни булеварди и административни учреждения.

Централна градска част. Отлична транспортна достъпност.

Обади се СЕГА и цитирай този код 657663.

Други апартаменти в сградата

5 купувача разглеждат този имот.

Локацията е приблизителна

Други имоти в тази локация

Транспорт

Проверете маршрут

Изпратете запитване

Мария Бояджиева

Мария Бояджиева

Консултант

Контакти

Форма за запитване

Подобни имоти

Пиши ни ново
Заяви оглед