0888 11 22 00
Най-добрият сайт на агенция
за имоти според потребителите

Тристаен апартамент, продажба, Варна, кв. Зимно кино Тракия

Код на имота: 679935

Тристаен апартамент, продажба, Варна

Тристаен апартамент, Варна, Зимно кино Тракия, 679935, Снимка 1
Тристаен апартамент, Варна, Зимно кино Тракия, 679935, Снимка 2
Тристаен апартамент, Варна, Зимно кино Тракия, 679935, Снимка 3
Тристаен апартамент, Варна, Зимно кино Тракия, 679935, Снимка 4
Тристаен апартамент, Варна, Зимно кино Тракия, 679935, Снимка 5
Тристаен апартамент, Варна, Зимно кино Тракия, 679935, Снимка 6
Варна, Зимно кино Тракия
102 кв.м.
229 500
Тристаен апартамент
Купи само за /мес.
г.
181 преглеждания
2254 €/кв.м.

Описание

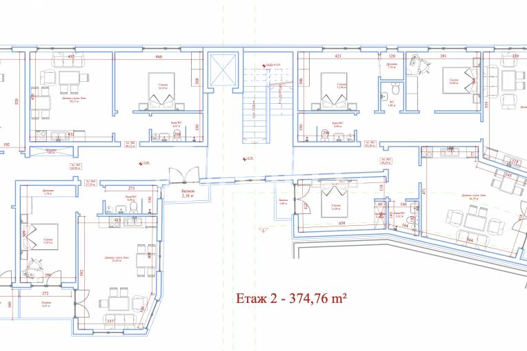
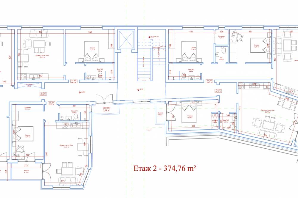
Площ: 102 кв.м.

Тип Имот: Тристаен апартамент

Етаж: 2

Ниво на обзавеждане: Шпакловка и замазка

Отопление: Друго

Тристаен апартамент със следното разпределение: дневна с кухненски бокс, две спални,  баня с тоалетна, отделно тоалетна и коридор. Нова жилищна сграда в широк център на Варна – кв. Зимно кино Тракия, проектирана с фокус върху функционални разпределения, модерна визия и качество на изпълнение. Проектът е с надземно РЗП 2 154 кв.м и съчетава най-търсеното на пазара: централна и комуникативна локация, но в същото време спокойна среда за живеене. Апартаментите ще се предават по БДС, което дава свобода на бъдещите собственици да завършат интериора според вкус, бюджет и стил – подходящо както за лично ползване, така и за инвестиция/отдаване под наем.

Етажност: 6 надземни етажа + 2 подземни нива (паркинг). идеен проект цял Паркиране: подземни паркоместа на ниво -1 и -2, включително опция за двойни (едно зад друго). Функционални жилища: разнообразие от разпределения, с добре организирани дневни зони и логични „мокри“ помещения. Горни нива с големи открити площи: част от жилищата са с просторни тераси, подходящи за кът за отдих, трапезария на открито или озеленяване. Завършени общи части с практични и издръжливи материали: Подове: коридори и фоайета – теракот Стълбища: стълбищни плотове и парапети Стени и тавани: гипсокартон с боя или гипсова мазилка Фасада: топлоизолация и минерални мазилки Baumit  Дограма: PVC с троен стъклопакет и енерджи стъкло Подготвена климатизация: положени тръбни пътища за климатици

Сградата се намира в кв. Зимно кино Тракия (широк център) – район с утвърдена инфраструктура и постоянен интерес. Локацията осигурява бърз достъп до ключови градски точки, търговски обекти и удобства, като едновременно с това позиционирането е на тихо място, което е реално предимство за ежедневен комфорт.

Широк център + тиха позиция – отлична комбинация за живеене и инвестиция Енергийна ефективност и комфорт – троен стъклопакет, енерджи стъкло, фасадна изолация Без такса поддръжка – по-нисък месечен разход за собствениците Подземен паркинг в 2 нива + опции за различни типове паркоместа (вкл. двойни). Практични разпределения без излишни „губещи“ площи, с добра логика на помещенията. Тераси и открити пространства, които реално се ползват – плюс към комфорта и стойността на имота. Подходящо за инвестиция: локация и тип имоти с устойчиво търсене (живеене/наем), особено при налично паркиране.

Обади се СЕГА и цитирай този код 679935.

Други апартаменти в сградата

Купувачите вече разглеждат този имот.

Локацията е приблизителна

Други имоти в тази локация

Транспорт

Проверете маршрут

Изпратете запитване

Виктор Харалампиев

Виктор Харалампиев

Консултант

Контакти

Форма за запитване

Подобни имоти

Пиши ни ново
Заяви оглед