0888 11 22 00
Най-добрият сайт на агенция
за имоти според потребителите

Тристаен апартамент, продажба, Благоевград, кв. Изгрев

Код на имота: 674068

Тристаен апартамент, продажба, Благоевград

Тристаен апартамент, Благоевград, Изгрев, 674068, Снимка 1
Благоевград, Изгрев
102 кв.м.
107 940
Тристаен апартамент
Купи само за /мес.
г.
229 преглеждания
1058 €/кв.м.

Описание

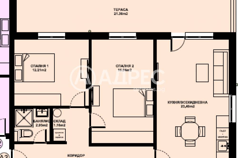
Площ: 102 кв.м.

Тип Имот: Тристаен апартамент

Етаж: 1

Ниво на обзавеждане: Шпакловка и замазка

Отопление: Друго

Агенция за недвижими имоти Адрес има удоволствието да Ви представи Нов проект в кв. Изгрев. Сградата се намира в затворен комплекс с ограда и контрол на достъпа. Сградата е на 4 нива: подземен паркинг, в който са рзположени и мазетата и три жилищни етажа. Рaйонът е тих и спокоен. Наблизо е бул."Пейо Яворов",осигуряващ достъп до магазини,кафета,спирки на градския транспорт,детска ясла,детска градина,VIII ОУ,плувен басейн. Предлаганият апартамент А3 на първи етаж с чиста площ от 97,10 кв.м / 102,80 кв.м с общи части / и има следното разположение: антре,дневна с кухненски бокс,две спални,килер,баня с тоалетна и тераса. Към апартамента принадлежи и мазе. Степен на завършеност : подова замазка,положена фина мазилка на стените и таваните, ВиК-до тапа, Ел-до точка, PVC дограма, външна топлоизолация,монтирана входна врата,отлично завършени общи части.Идентичен апартамент има и на втори и трети жилищен етаж. Допълнително може да бъдат закупени паркоместа и гаражи в подземния паркинг на сградата. Възможност за гъвкава схема на плащане,според степента на завършеност! За повече информация относно цени и квадратури,може да се обадите на посечените телефони. Предлагаме на всички заинтересовани клиенти безплатно съдействие при кандидастване за ипотечен и потребителски кредит!

Обади се СЕГА и цитирай този код 674068.


Оферта от партньор на Адрес

Купувачите вече разглеждат този имот.

Локацията е приблизителна

Други имоти в тази локация

Изпратете запитване

Виктория Милева

Виктория Милева

Консултант

Контакти

Форма за запитване

Подобни имоти

Заяви оглед

За Благоевград и недвижимите имоти

Благо̀евград е културен и образователен център на Югозападна България и административен център на едноименната област и община. Икономиката на Благоевград е относително разнообразна и добре балансирана. Най-голям принос в произведения обем продукция и брой работни места е сектор промишленост, следван от търговия и транспорт.

Заради големия брой студенти, кръстопътното си географско положение, природата и редица социални фактори, градът има сравнително добре развиваща се икономика, привличаща както местни купувачи, така и инвеститори, които търсят възможности за доход от наеми или бъдеща капиталова печалба. 

Tенденциите на пазара на жилища в България ясно показват, че двустайните и тристайните апартаменти продължават да са най‑търсените типове жилища, което важи и за Благоевград като активен регионален център. Това се дължи на комбинация от фактори – от предпочитанията на семейства и инвеститори до студентския сектор, който също създава пазарно търсене. Основната причина за тази структура на търсенето е прагматичният баланс между цена, функционалност и жилищна площ. 

В Благоевград, където жилищният пазар често се подпомага от присъствието на университетски общности и студенти, търсенето на апартаменти с две или три стаи остава стабилно. Тези жилища са предпочитани и за наемен пазар, особено ако са обзаведени или имат добър потенциал за доход от наеми, което привлича инвеститори и частни купувачи. Особено внимание купувачите обръщат на жилища, които не изискват значителни ремонти и са разположени близо до университетски кампуси, ключови транспортни връзки или централни части на града. 

Към това се добавя и търсенето на ново строителство, което е предпочитано от много купувачи заради по‑съвременните стандарти за енергийна ефективност, по‑ниските разходи за поддръжка и по‑удобните планировки. Новите проекти, които предлагат качествено изпълнение и функционално разпределение на пространството, често се реализират по‑бързо и стабилно, отколкото старото строителство, което поради по‑ниските си цени понякога привлича по‑специфична група купувачи. 

 

Кои райони на Благоевград показват потенциал за растеж? 

Централни райони като квартал „Център“ остават най-привлекателни за купувачите и инвеститорите. Тук цената на квадратен метър е по-висока, но районът предлага удобство, близост до ключови услуги, университети, административни сгради и транспортни връзки. Тези фактори осигуряват стабилно търсене и добри възможности за отдаване под наем, което прави квартала подходящ за инвестиционни сделки с очаквано по-устойчиво поскъпване на имотите. 

Периферни квартали като „Освобождение“ и „Еленово“ се отличават с по-ниски текущи цени и възможности за по-бърза капиталова печалба. Тук интересът расте постепенно, особено за ново строителство, което предлага по-модерни планировки и енергийна ефективност. Тези райони са предпочитани от купувачи с ограничен бюджет, но с оглед на стабилното търсене, цените в средносрочен план се очаква да се покачват. 

Квартали в близост до университетски кампуси също имат значителен потенциал, тъй като студентите създават постоянно търсене за наемни жилища. Двустаен апартамент близо до учебни заведения гарантира лесна доходност от отдаване под наем и стабилен интерес на пазара. 

Не на последно място, новото строителство в нови и развиващи се райони на Благоевград се открояват като перспективни за инвестиции. Инфраструктурни проекти, разширяване на пътища и обществени услуги в тези зони допринасят за увеличаване на стойността на имотите с течение на времето. 

 

Какви фактори ще влияят върху търсенето на апартаменти? 

Икономическата среда е ключов фактор. Стабилните доходи на домакинствата, ниските лихви по ипотечни кредити и очакванията за устойчиво развитие на икономиката стимулират купувачите да се ангажират с покупка на жилище. Въвеждането на еврото също създава по‑стабилна среда, увеличава доверието на купувачите и намалява риска от валутни колебания, което допълнително поддържа активността на пазара. 

Демографските фактори също играят важна роля. Благоевград е университетски град, което води до постоянно търсене на жилища от студенти и млади семейства. Търсенето на дву- и тристайни апартаменти се поддържа от нуждите на тези групи – както за лично ползване, така и за отдаване под наем. Семейства с деца също търсят апартаменти в райони с добри училища, детски градини и близост до зелените пространства, което влияе върху избора на квартал и тип жилище. 

Инфраструктурата и локацията са сред другите водещи фактори. Апартаменти близо до центъра, транспортни връзки и ключови услуги се купуват по-бързо и често се оценяват с по-високи цени. Районите с ново строителство, модерни планировки и енергийна ефективност привличат както купувачи за живеене, така и инвеститори, които търсят доход от наеми. 

Пазарните фактори, като наличност на имоти, разнообразие в офертите и динамика на цените, също оказват влияние върху търсенето. В градове като Благоевград, където предлагането е ограничено в определени квартали, активното търсене води до по-бързо реализиране на сделки и увеличаване на цените в привлекателните райони. 

Независимо дали търсите уютно студио, просторен апартамент или къща, старо или ново строителство, обзаведени или необзаведени, обявите ни включват разнообразни имоти с функционално разпределение, които отговарят на различни бюджети и предпочитания. 

 

При нас може да откриете различни типове жилища и бизнес имоти в всички райони и квартали на Благоевград:

>>  едностайни апартаменти в Благоевград
>>  двустайни апартаменти в Благоевград
>>  тристайни апартаменти в Благоевград
>>  многостайни апартаменти в Благоевград
>>  къщи в Благоевград
>>  офиси в Благоевград
>>  търговски площи в Благоевград

Нашите брокери недвижими имоти, специализирали в процеса на избор, договаряне и  осъществяване на сделки с имоти, ще ви съпътстват през целия процес - сравнение на оферти, провеждане на огледи и преговори, запознаване и изготвяне на юридическа документация за покупка на мечтания от вас дом.
 
Тук може да се запознаете и с местоположението на офиса на АДРЕС в Благоевград.