0888 11 22 00
Най-добрият сайт на агенция
за имоти според потребителите

Двустаен апартамент, продажба, Бургас, кв. Изгрев

Код на имота: 681072

Двустаен апартамент, продажба, Бургас

Двустаен апартамент, Бургас, Изгрев, 681072, Снимка 1
Двустаен апартамент, Бургас, Изгрев, 681072, Снимка 2
Двустаен апартамент, Бургас, Изгрев, 681072, Снимка 3
Двустаен апартамент, Бургас, Изгрев, 681072, Снимка 4
Сграда Панорама-Изгрев - 11 свободни Вижте всички свободни апартаменти в сградата
Новo
Бургас, Изгрев
86 кв.м.
112 411
Двустаен апартамент
Купи само за /мес.
г.
29 преглеждания
1307 €/кв.м.

Описание

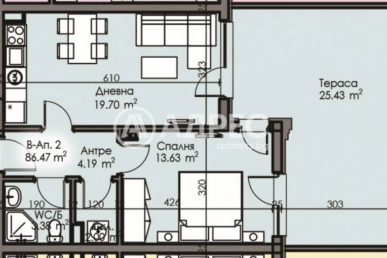
Площ: 86 кв.м.

Тип Имот: Двустаен апартамент

Етаж: 2

Ниво на обзавеждане: Шпакловка и замазка

Отопление: Друго

Представяме Ви, многофункционална жилищна сграда, която ще бъде изградена с двустайни, тристайни, многостайни апартаменти и ателиета и търговски площи-офиси и магазини, разпределени в три секции, със самостоятелни входове, отделни асансьори, паркоместа и подземни гаражи, и складове към жилищните имоти. На партерния етаж също ще има гаражи и търговски помещения.

НОВ ПРОЕКТ. Начало на строежа - октомври 2024г. Срок на изпълнение - 34 месеца от откриване на строителната линия. Всички апартаменти се издават по БДС.

Гр. Бургас, жк. Изгрев. В непосредствена близост до спирки на градски транспорт и на пешеходно разстояние до Морската градина - удобен и комуникативен район.

БЕЗ КОМИСИОН ОТ КУПУВАЧА! Гъвкава схема на плащане.

Обади се СЕГА и цитирай този код 681072.

Други апартаменти в сградата

Купувачите вече разглеждат този имот.

Локацията е приблизителна

Други имоти в тази локация

Транспорт

Проверете маршрут

Изпратете запитване

Велина Василева

Велина Василева

Консултант

Контакти

Форма за запитване

Подобни имоти

Пиши ни ново
Заяви оглед

За квартал Изгрев в Бургас

Квартал Изгрев се намира в североизточната част на Бургас, в непосредствена близост до езерото Атанасовско и основни транспортни артерии, в това число бул. „Транспортна“, част от европейския път Е87, бул. „Стефан Стамболов”, бул. „Никола Петков” , които осигуряват автомобилен достъп до централната част на града и околните райони. 

В квартала има както жилищни сгради, панелни блокове и ЕПК строителство от 70-те и 80-те години, така и нови комплекси, бизнес строителството с модерни административни сгради.

Районът е свързан с центъра и останалите части на Бургас чрез автобусни линии, които преминават през квартала, като се осигурява редовен обществен транспорт за жителите по линии Б11, Б12, Б13, 3, 6, 11, 12, и 15.

Образователната инфраструктура в квартала е оформена от наличието на редица училища като СУ „Добри Чинтулов", АЕГ „Гео Милев", СУ „Йордан Йовков" и други, а за по-малките деца образованието е обезпечено от детски градини ДГ „Веселушко”, „Здравец”, „Изгрев”.

Жителите на квартал Изгрев могат да се възползват от медицински услуги, които се осигуряват от МБАЛ Лайф Хоспитал, Медицински център „Оксиком“, Медицински център д-р Стайков,  Медицински център “Прайм Клиник, както и клиники, осигуряващи дентална грижа и ветеринарните клиники „Изгрев“ и „Sunrise VET", които предлагат медицински грижи и за домашни любимци.


В квартала има супермаркети, магазини, заведения, фитнес центрове и различни услуги, които удовлетворяват ежедневните нужди на гражданите. Изгрев разполага и със зелени площи като парк „Велека” и междублокови пространства, предлагащи възможност за разходки, спорт и отдих. 
Комбинацията от завършена инфраструктура, транспортно обслужване и разнообразие от услуги, утвърждават квартала като предпочитана зона както за семейства, така и за инвеститори, които търсят имоти с дългосрочен потенциал и високо качество на живот.
 

Независимо дали търсите уютно студио, просторен апартамент или къща, старо или ново строителство, обзаведени или необзаведени, обявите ни включват разнообразни имоти с функционално разпределение, които отговарят на различни бюджети и предпочитания. 

Нашите брокери недвижими имоти, специализирали в процеса на избор, договаряне и  осъществяване на сделки с имоти, ще ви съпътстват през целия процес - сравнение на оферти, провеждане на огледи и преговори, запознаване и изготвяне на юридическа документация за покупка на мечтания от вас дом.
 
Тук може да се запознаете и с местоположението на офисите на АДРЕС в Бургас.