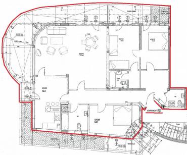
София, Павлово
147 кв.м.
437 000
Многостаен апартамент