0888 11 22 00
Най-добрият сайт на агенция
за имоти според потребителите

Едностаен апартамент, продажба, София, кв. Център

Код на имота: 668956

Едностаен апартамент, продажба, София

Едностаен апартамент, София, Център, 668956, Снимка 1
Едностаен апартамент, София, Център, 668956, Снимка 2
София, Център
46 кв.м.
151 700
Едностаен апартамент
Купи само за /мес.
г.
561 преглеждания
3298 €/кв.м.

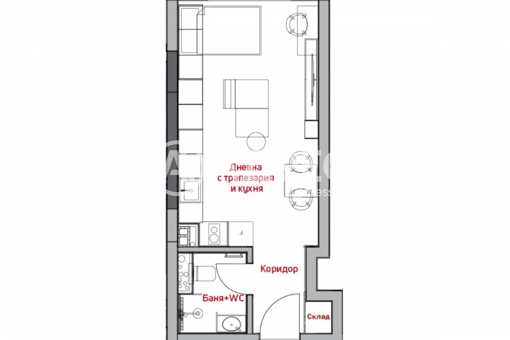
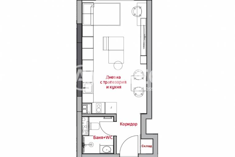
Описание

Площ: 46 кв.м.

Тип Имот: Едностаен апартамент

Етаж: 7

Ниво на обзавеждане: До ключ

Отопление: ТЕЦ

Без Комисионна.Еднопространствено ателие, състоящо се от дневна с кухненски бокс, спален кът,  бания с тоалетна. Цената е за довършено ателие с готова баня, настилки, латекс, интериорни врати и первази.

Висок клас строителство.  Енергийно-ефективна 5 камерна PVC дограма, с прекъснат термомост.

В близост до парк Възраждане, магазин LIDL, МОЛ София.

Топ локация. Доказан инвеститор. Опция за гараж. АКТ 16 от лятото на 2024г. Без Комисионна. Завършен до ключ. Покривна тераса на сградата за общо ползване. Среден етаж. Южен.

Обади се СЕГА и цитирай този код 668956.


Оферта от партньор на Адрес

Други апартаменти в сградата

Купувачите вече разглеждат този имот.

Локацията е приблизителна

Други имоти в тази локация

Транспорт

Проверете маршрут

Изпратете запитване

Валентин Киров

Валентин Киров

Консултант

Контакти

Форма за запитване

Подобни имоти

Пиши ни ново
Заяви оглед

За квартал Център, София

Квартал Център представлява историческото и административно сърце на София. Разположен върху основите на древния римски град Сердика, той е емблематична част на столицата, в която се съчетават архитектурното наследство, градската среда и съвременната инфраструктура. Кварталът обхваща пространството между булевардите „Васил Левски“, „Мария Луиза“, „Патриарх Евтимий“, „Сливница“ и „Христо Ботев“, което го прави географски ядрото на града.

 

Центърът разполага с най-развитата транспортна мрежа в София. През него преминават три линии на метрото, обслужвани от станции „Сердика“, „НДК“, „Софийски университет“, „Опълченска“ и „Лъвов мост“. Тук функционират множество автобусни, тролейбусни и трамвайни линии, които осигуряват директен достъп до всички части на столицата. Добрата пътна организация и централното разположение правят придвижването удобно както за жители, така и за работещи в района.
Централната част на София се отличава с разнообразен жилищен фонд, от реставрирани кооперации с историческа стойност и архитектурен чар, до новопостроени сгради с високо качество на изпълнение. 

 

Квартал Център предлага пълноценна градска среда, в която се намират държавни и частни училища, детски градини, както и висши учебни заведения, сред които Софийски университет „Св. Климент Охридски“, УАСГ, Националната художествена академия и Музикалната академия.
 Медицинските услуги са достъпни чрез държавни и частни болници, поликлиники и аптеки, включително МБАЛ „Св. Екатерина“, Първа градска болница и УМБАЛ „Александровска“ в непосредствена близост.

 

Търговската инфраструктура е добре развита, в района се намират магазини от големи вериги, бутикови обекти, супермаркети, пазари и ресторанти. Центърът е и културното средище на София. Тук са разположени Националният театър „Иван Вазов“, Националната художествена галерия, катедралата „Св. Александър Невски“, както и множество театри, галерии и концертни зали.
Въпреки централното си разположение, районът разполага с разнообразие от зелени площи – Градската градина, Докторската градина, парковете „Заимов“ и „Борисова градина“.

Богатата инфраструктура, централното местоположение и културно-историческата стойност на района превръщат Центъра в един от най-предпочитаните райони в София за покупка на недвижим имот както за дългосрочно живеене, така и за инвестиции с цел отдаване под наем. 

 

Независимо дали търсите уютно студио, просторен апартамент или къща, старо или ново строителство, обзаведени или необзаведени, обявите ни включват разнообразни имоти с функционално разпределение, които отговарят на различни бюджети и предпочитания. 

Нашите брокери недвижими имоти, специализирали в процеса на избор, договаряне и  осъществяване на сделки с имоти, ще ви съпътстват през целия процес - сравнение на оферти, провеждане на огледи и преговори, запознаване и изготвяне на юридическа документация за покупка на мечтания от вас дом.
 
Тук може да се запознаете и с местоположението на офисите на АДРЕС в София.