0888 11 22 00
Най-добрият сайт на агенция
за имоти според потребителите

Парцел/Терен, продажба, София, кв. Враждебна

Код на имота: 452639
XXXXX, XXXXXXXXXX
35910 кв.м.
XXX
Парцел/Терен
2256 преглеждания
X €/кв.м.

Описание

Площ: 35910 кв.м.

Тип Имот: Парцел/Терен

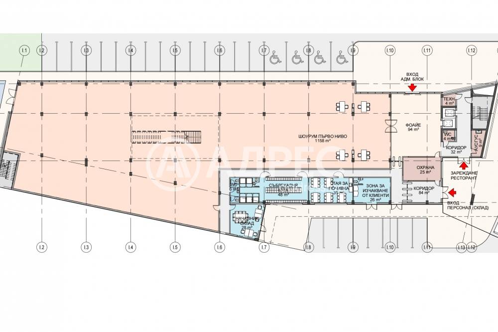
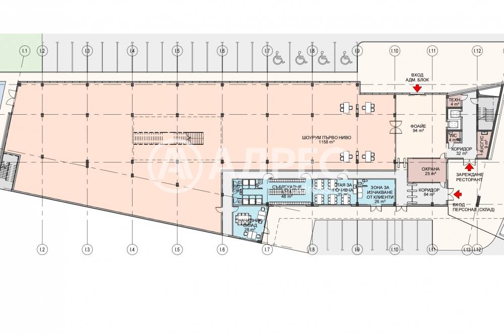
Инвестиционен парцел с лице от 180 метра на асфалтиран главен път Е871. Общатата площ на парцела е 35910 кв.м., което го прави изключително подходящ за инвестиция за голям логистичен център, складова или произвидствена база. Зоната на застрояване, в която попада парцелът е СМФ-2 като параметрите, които могат да бъдат изпълнени  са: - Плътност 60%, - кинт 1,2, - озеленяване - 30%. Върху обявената цена се начислява ДДС! 

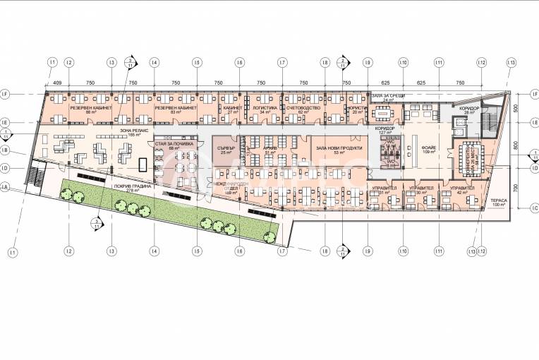
Идеен проект за административен блок: Самостоятелна сграда на четири нива: партер и три надземни етажа. Партерът е с височина 5,60 м, а другите етажи 3,85 м. Основните площи на партера /1158 кв.м./ и първият етаж /1443 кв.м./ са заети от шоурум с вътрешна стълба между нивата. На втория етаж е разположена администрацията. На третия етаж е обособен ресторант и покрита тераса. Складов блок: Обособен като едноетажна сграда с топла връзка към административен блок.

Главен път Е871 ; лице към автомагистрала Хемус; В непосредствена близост до бензиностанция Shell; 20 м от спирка на автобуси №14 и №18 , които имат връзка с автогара Изток;

Директен достъп от главен път; Равен терен; Спирка на градски транспорт; В близост до хранителен магазин и голям Ритейл парк;

Обади се СЕГА и цитирай този код 452639.

Купувачите вече разглеждат този имот.

Локацията е приблизителна

Други имоти в тази локация

Транспорт

Проверете маршрут

Изпратете запитване

Елена Петрова

Елена Петрова

Консултант

Контакти

Подобни имоти

Пиши ни ново
Заяви оглед