0888 11 22 00
Най-добрият сайт на агенция
за имоти според потребителите

Двустаен апартамент, продажба, Варна, кв. Виница

Код на имота: 680298

Двустаен апартамент, продажба, Варна

Двустаен апартамент, Варна, Виница, 680298, Снимка 1
Двустаен апартамент, Варна, Виница, 680298, Снимка 2
Двустаен апартамент, Варна, Виница, 680298, Снимка 3
Двустаен апартамент, Варна, Виница, 680298, Снимка 4
Двустаен апартамент, Варна, Виница, 680298, Снимка 5
Варна, Виница
70 кв.м.
129 280
Двустаен апартамент
Купи само за /мес.
г.
178 преглеждания
1847 €/кв.м.

Описание

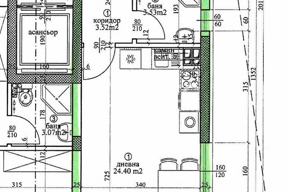
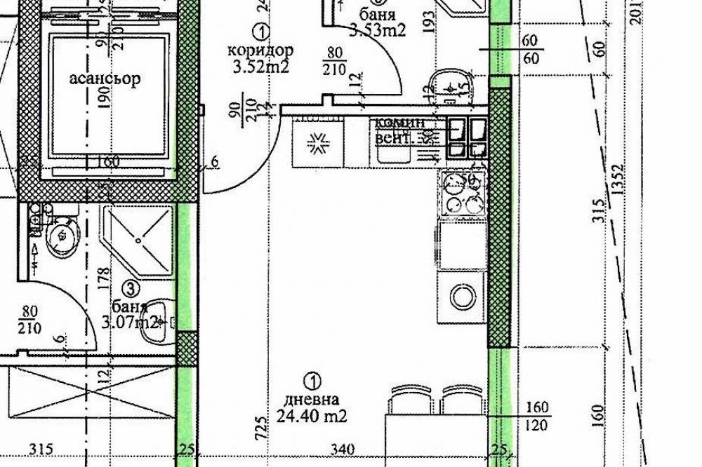
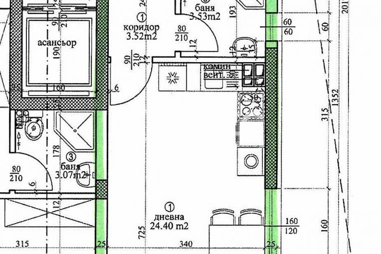
Площ: 70 кв.м.

Тип Имот: Двустаен апартамент

Етаж: 4

Ниво на обзавеждане: Шпакловка и замазка

Отопление: Друго

СГРАДАТА Е НА ЕТАП СЛЕД АКТ 14! Двустаен апартамент с чиста площ от 60м2, с ЮЖНО ИЗЛОЖЕНИЕ И МОРСКА ПАНОРАМА. Състои се от дневен тракт - 25м2, спалня - 14м2, тераса, баня с тоалет.

Общите части на сградата ще бъдат завършени с гранит, алуминиеви парапети, структурна мазилка, луксозен асансьор, стилно и елегантно фоайе. Фасадата ще бъде изпълнена с външна хастарна мазилка, 10см топлоизолация и силиконова мазилка. Ще бъде положена елестична звукоизолационна подложка за защита от ударен шум - Fonas 31 на всички етажни плочи. Апартаментите ще се издават по БДС, а за удобство на нашите клиенти предлагаме и довършване "до ключ".

Квaртал Виница се намира се на 6 км от центъра Варна и на 2 км от курорта „Свети Свети Константин и Елена“. к.к. „Златни пясъци“ е на 11 км., а летище Варна 12 км.

- Избор на етаж и изложение - Градска и морска панорама

Обади се СЕГА и цитирай този код 680298.

Други апартаменти в сградата

Купувачите вече разглеждат този имот.

Локацията е приблизителна

Други имоти в тази локация

Транспорт

Проверете маршрут

Изпратете запитване

Женя Колева

Женя Колева

Консултант

Контакти

Форма за запитване

Подобни имоти

Пиши ни ново
Заяви оглед

За квартал Виница във Варна

Квартал Виница е разположен в североизточната част на Варна, между кварталите Бриз и курортния комплекс „Св. Св. Константин и Елена“. Районът се характеризира със спокойна жилищна среда, близост до морето и зелените зони, което го утвърждава като предпочитан избор за постоянно обитаване извън централната градска динамика.

Транспортната достъпност на Виница е осигурена чрез бул. „Свети Свети Константин и Елена“, който свързва квартала с централната част на Варна. Основна вътрешна артерия е ул. „Цар Борис III“, която обслужва жилищните зони и търговските обекти в района. Кварталът се обслужва от автобусни линии №29, 31, 31А, осигуряващи регулярна връзка с центъра на града, ЖП гара Варна, Морската градина и курортните зони.

Жилищната среда във Виница е разнообразна и включва еднофамилни къщи, малки кооперации, както и нови жилищни сгради. През последните години в квартала се реализират съвременни жилищни проекти с модерна архитектура и контрол на достъпа. 

Образователната инфраструктура в квартал Виница включва детски градини и Основно училище "Панайот Волов", като в съседните райони са разположени и средни училища, гимназии и частни образователни центрове. Близостта до университетските зони на Варна позволява достъп до Икономически университет – Варна и Медицински университет – Варна чрез градския транспорт.

Здравното обслужване в района се осигурява от медицински центрове, общопрактикуващи лекари, стоматологични кабинети и аптеки. В близост се намират водещи лечебни заведения като Медицински Център Евромедика Варна, Медицински център Янев и МБАЛ „Еврохоспитал“, които предоставят пълен спектър от специализирани медицински услуги.

Търговската и обслужваща инфраструктура във Виница включва супермаркети, квартални магазини, заведения, фитнес и спортни обекти, както и административни. Близостта до курортните комплекси, морския бряг и зелените зони създава допълнителни възможности за отдих и активен начин на живот.

Съчетанието между спокойна жилищна среда, добра транспортна свързаност, модерно ново строителство и близост до морето и курортните зони утвърждава квартал Виница като устойчиво развиващ се и търсен район за живеене и инвестиции в жилищни имоти във Варна.
 

Независимо дали търсите уютно студио, просторен апартамент или къща, старо или ново строителство, обзаведени или необзаведени, обявите ни включват разнообразни имоти с функционално разпределение, които отговарят на различни бюджети и предпочитания. 

 

При нас може да откриете различни типове жилища и бизнес имоти в всички райони и квартали на Варна:

>>  едностайни апартаменти във Варна
>>  двустайни апартаменти във Варна
>>  тристайни апартаменти във Варна
>>  многостайни апартаменти във Варна
>>  къщи във Варна
>>  офиси във Варна
>>  търговски площи във Варна
 

Нашите брокери недвижими имоти, специализирали в процеса на избор, договаряне и  осъществяване на сделки с имоти, ще ви съпътстват през целия процес - сравнение на оферти, провеждане на огледи и преговори, запознаване и изготвяне на юридическа документация за покупка на мечтания от вас дом.
 
Тук може да се запознаете и с местоположението на офисите на АДРЕС във Варна.