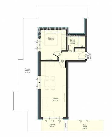
Варна, Галата
Двустаен апартамент
130 000
140 000
229 900
128 000
Регистрацията в address.bg Ви дава възможност да получите детайлна информация за всеки имот, който Ви интересува.
Благодарим ви! Проверете имейл адрес си, за да активирате регистрацията.
Благодарим ви! Очаквайте скоро да се свържем с вас!